Handleiding
Je bekijkt pagina 61 van 96

61
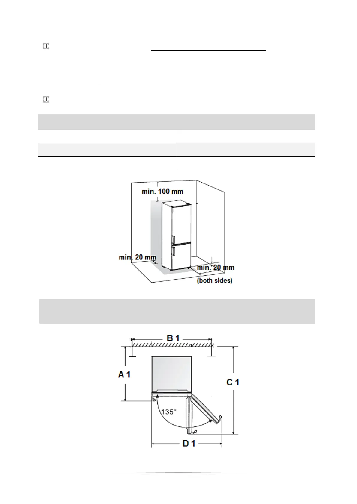
Please observe the additional front and lateral space requirement (s. above, C /
D) of the open door(s) relevant to the door opening angle of your appliance.
3.2.2 Ventilation
Observe the required minimum distances for proper ventilation.
MINIMUM DISTANCES REQUIRED FOR PROPER VENTILATION:
Back ↔ wall
min. 20 mm
Sides ↔ wall
min. 20 mm
Free space above
min. 100 mm
SPACE REQUIREMENT OF THE APPLIANCE INCL. MINIMUM DISTANCES FOR
PROPER VENTILATION:
Bekijk gratis de handleiding van PKM KG225.4A+++IX, stel vragen en lees de antwoorden op veelvoorkomende problemen, of gebruik onze assistent om sneller informatie in de handleiding te vinden of uitleg te krijgen over specifieke functies.
Productinformatie
Merk | PKM |
Model | KG225.4A+++IX |
Categorie | Koelkast |
Taal | Nederlands |
Grootte | 15006 MB |