PKM GSP12-4DFI handleiding
Handleiding
Je bekijkt pagina 92 van 144

~ 92 ~
If the water drain hose is longer than 4 metres the dishes will not be cleaned
properly. Check that the connection does not leak. Fix the outlet hose with a
hose-holder.
NOTICE! After the installation of the water supply and wastewater disposal
as well as before the first operation, all water hose connections – even on
the appliance itself – must be checked for leakage. The manufacturer is
not liable for any damage caused by improper installation.
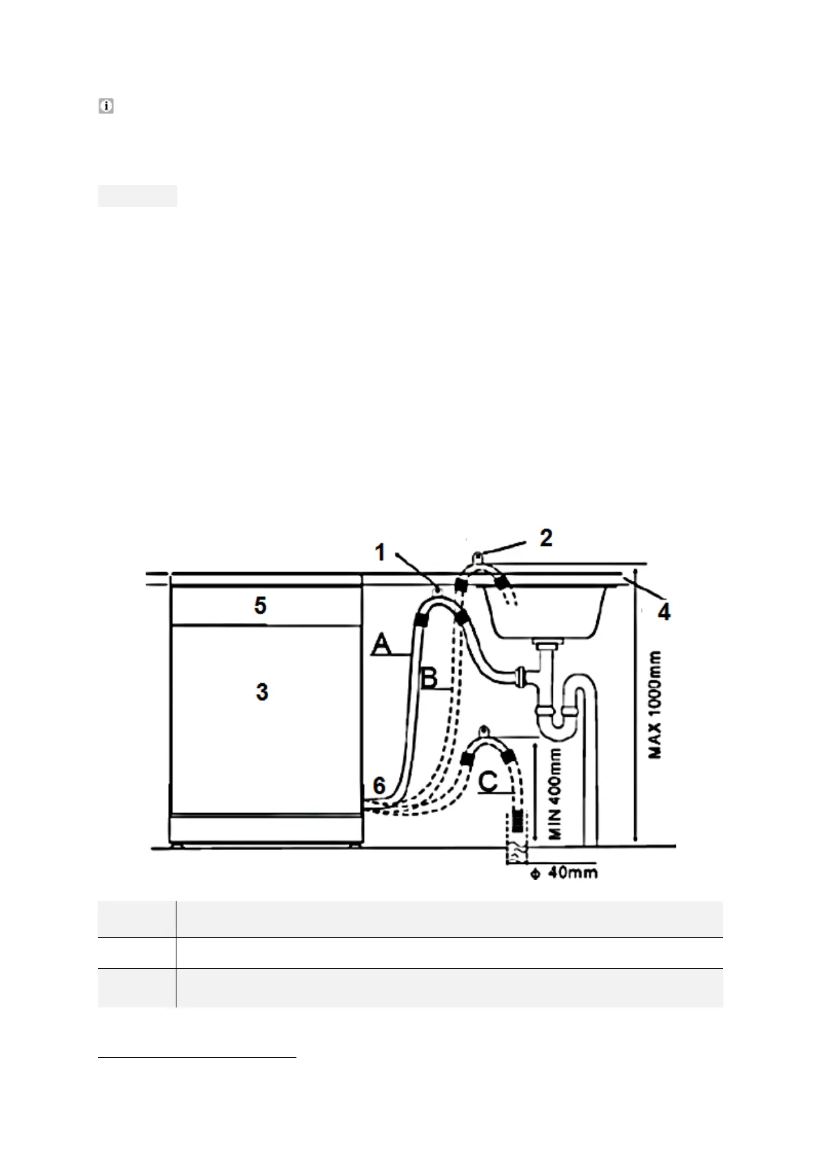
2.7 Raised level installation
Partially and fully integrated appliances can be installed at a raised level when
connected properly.
33
A collar enables the bending of the drain hose. There is a holding device on the
collar to fix the collar. The drain hose must have a height of at least 400 mm at
the top of the collar. Look at the drawing below for the connection options A, B
or C.
1
Hang the hook of the WATER DRAIN HOSE on the worktop
2
HOOK OF THE DRAIN HOSE
3
DISHWASHER
33
Depending on model.
Bekijk gratis de handleiding van PKM GSP12-4DFI, stel vragen en lees de antwoorden op veelvoorkomende problemen, of gebruik onze assistent om sneller informatie in de handleiding te vinden of uitleg te krijgen over specifieke functies.
Productinformatie
| Merk | PKM |
| Model | GSP12-4DFI |
| Categorie | Niet gecategoriseerd |
| Taal | Nederlands |
| Grootte | 24942 MB |


