PKM GSP12-4DFI handleiding
Handleiding
Je bekijkt pagina 20 van 144

~ 20 ~
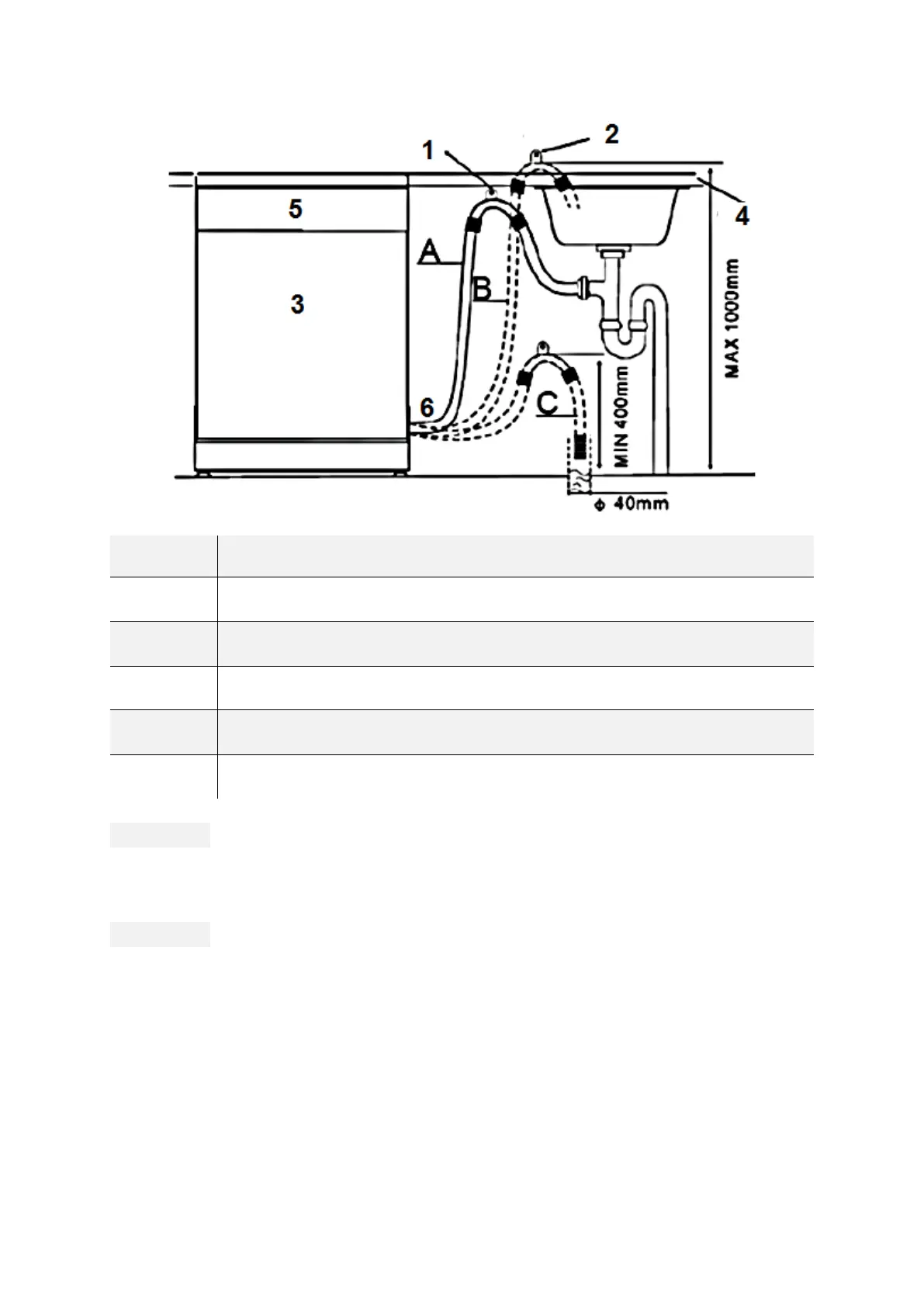
1
Hängen Sie den ABWASSERSCHLAUCH an die Arbeitsplatte
2
BEFESTIGUNG DES ABWASSERSCHLAUCHS
3
GESCHIRRSPÜLER
4
ARBEITSPLATTE
5
VORDERSEITE des Gerätes
6
ABWASSERSCHLAUCH
HINWEIS! Der OBERSTE PUNKT DES SCHLAUCHS muss sich auf einer Höhe
zwischen 400 und 1000 mm befinden. Das freie Ende des Schlauchs darf
nicht in Flüssigkeiten (Wasser etc.) hineinragen.
HINWEIS! Nach Beendigung der Installation des Wasseranschlusses und
der Abwasserführung sowie vor der regulären Erstinbetriebnahme
müssen die Anschlüsse – auch am Gerät selbst – auf ihre Dichtheit
überprüft werden. Der Hersteller ist nicht für durch unsachgemäße
Installation verursachte Schäden haftbar.
Bekijk gratis de handleiding van PKM GSP12-4DFI, stel vragen en lees de antwoorden op veelvoorkomende problemen, of gebruik onze assistent om sneller informatie in de handleiding te vinden of uitleg te krijgen over specifieke functies.
Productinformatie
| Merk | PKM |
| Model | GSP12-4DFI |
| Categorie | Niet gecategoriseerd |
| Taal | Nederlands |
| Grootte | 24942 MB |


