Phoenix Contact CSS 1.5-1/3-EMC handleiding
Handleiding
Je bekijkt pagina 17 van 152

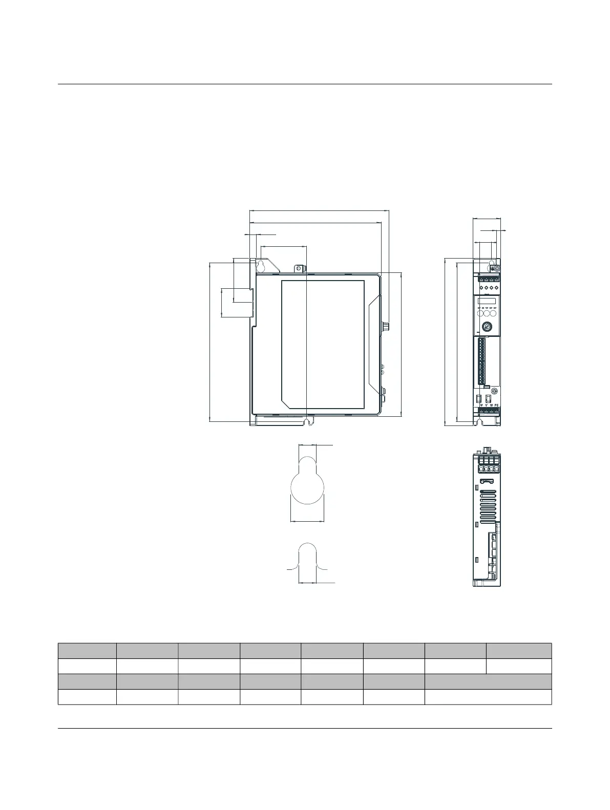
Dimensions
109908_en_02 Phoenix Contact 17 / 150
3 Dimensions
3.1 Housing A1
Figure 3-1 Housing A1: CSS 0.25-1/3, CSS 0.25-3/3, CSS 0.37-1/3, CSS 0.37-3/3,
CSS 0.55-3/3
Table 3-1 Dimensions of housing A1 (unit: mm [inches])
W W1 W2 H H1 H2 H3 H4
35.0 [1.38] 15.0 [0.59] 6.0 [0.24] 210.0 [8.27] 199.0 [7.83] 199.0 [7.83] 180 [7.09] 55.7 [2.19]
H5 D D1 D2 D3 S1 S2
36.2 [1.43] 174.7 [6.88] 165.0 [6.50] 57.5 [2.26] 8.5 [0.34] 5.5 [0.22] 10.4 [0.41]
Bekijk gratis de handleiding van Phoenix Contact CSS 1.5-1/3-EMC, stel vragen en lees de antwoorden op veelvoorkomende problemen, of gebruik onze assistent om sneller informatie in de handleiding te vinden of uitleg te krijgen over specifieke functies.
Productinformatie
| Merk | Phoenix Contact |
| Model | CSS 1.5-1/3-EMC |
| Categorie | Niet gecategoriseerd |
| Taal | Nederlands |
| Grootte | 11973 MB |







