Phoenix Contact CSS 0.55-3/3-EMC handleiding
Handleiding
Je bekijkt pagina 19 van 152

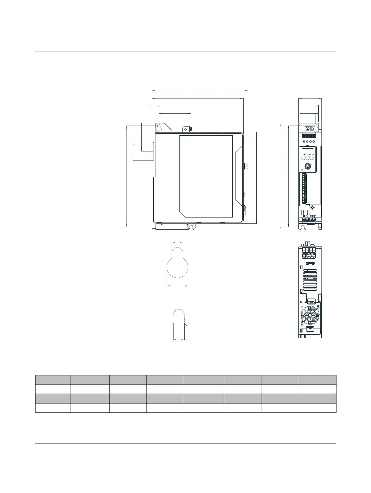
Dimensions
109908_en_02 Phoenix Contact 19 / 150
3.3 Housing B1 with fan
Figure 3-3 Housing B1: CSS 1.5-1/3, CSS 1.5-3/3
Table 3-3 Housing B1 with fan (unit: mm [inches])
W W1 W2 H H1 H2 H3 H4
45.0 [1.77] 25.0 [0.98] 6.0 [0.24] 210.0 [8.27] 199.0 [7.83] 199.0 [7.83] 180 [7.09] 55.7 [2.19]
H5 D D1 D2 D3 S1 S2
36.2 [1.43] 189.7 [7.47] 180.0 [7.09] 63.5 [2.50] 8.0 [0.32] 5.5 [0.22] 10.4 [0.41]
Bekijk gratis de handleiding van Phoenix Contact CSS 0.55-3/3-EMC, stel vragen en lees de antwoorden op veelvoorkomende problemen, of gebruik onze assistent om sneller informatie in de handleiding te vinden of uitleg te krijgen over specifieke functies.
Productinformatie
| Merk | Phoenix Contact |
| Model | CSS 0.55-3/3-EMC |
| Categorie | Niet gecategoriseerd |
| Taal | Nederlands |
| Grootte | 11973 MB |







