Phoenix Contact CSS 0.55-1/3 handleiding
Handleiding
Je bekijkt pagina 21 van 152

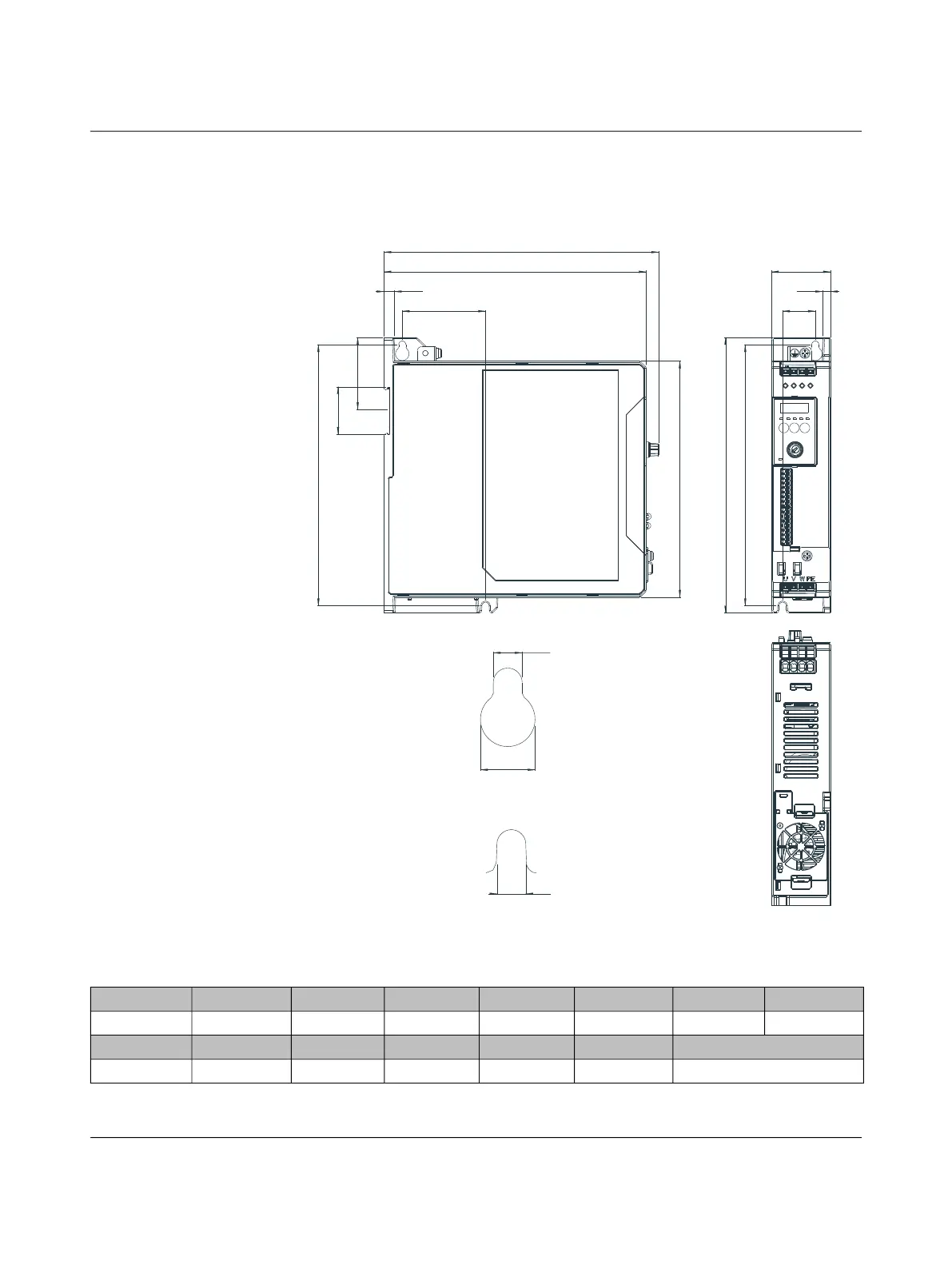
Dimensions
109908_en_02 Phoenix Contact 21 / 150
3.5 Housing B2
Figure 3-5 Housing B2: CSS 0.55-1/3-EMC, CSS 0.75-1/3-EMC, CSS 1.5-1/3-EMC,
CSS 1.5-3/3-EMC
Table 3-5 Housing B2 (unit: mm [inches])
W W1 W2 H H1 H2 H3 H4
45.0 [1.77] 25.0 [0.98] 6.0 [0.24] 210.0 [8.27] 199.0 [7.83] 199.0 [7.83] 180 [7.09] 55.7 [2.19]
H5 D D1 D2 D3 S1 S2
36.2 [1.43] 209.7 [8.26] 200.0 [7.87] 63.5 [2.50] 8.0 [0.32] 5.5 [0.22] 10.4 [0.41]
Bekijk gratis de handleiding van Phoenix Contact CSS 0.55-1/3, stel vragen en lees de antwoorden op veelvoorkomende problemen, of gebruik onze assistent om sneller informatie in de handleiding te vinden of uitleg te krijgen over specifieke functies.
Productinformatie
Merk | Phoenix Contact |
Model | CSS 0.55-1/3 |
Categorie | Niet gecategoriseerd |
Taal | Nederlands |
Grootte | 11973 MB |