Philco PD 1468 DOW handleiding
Handleiding
Je bekijkt pagina 36 van 48

$PQZSJHIUª'BTUƎ3BT 3FWJTJPO
EN - 34
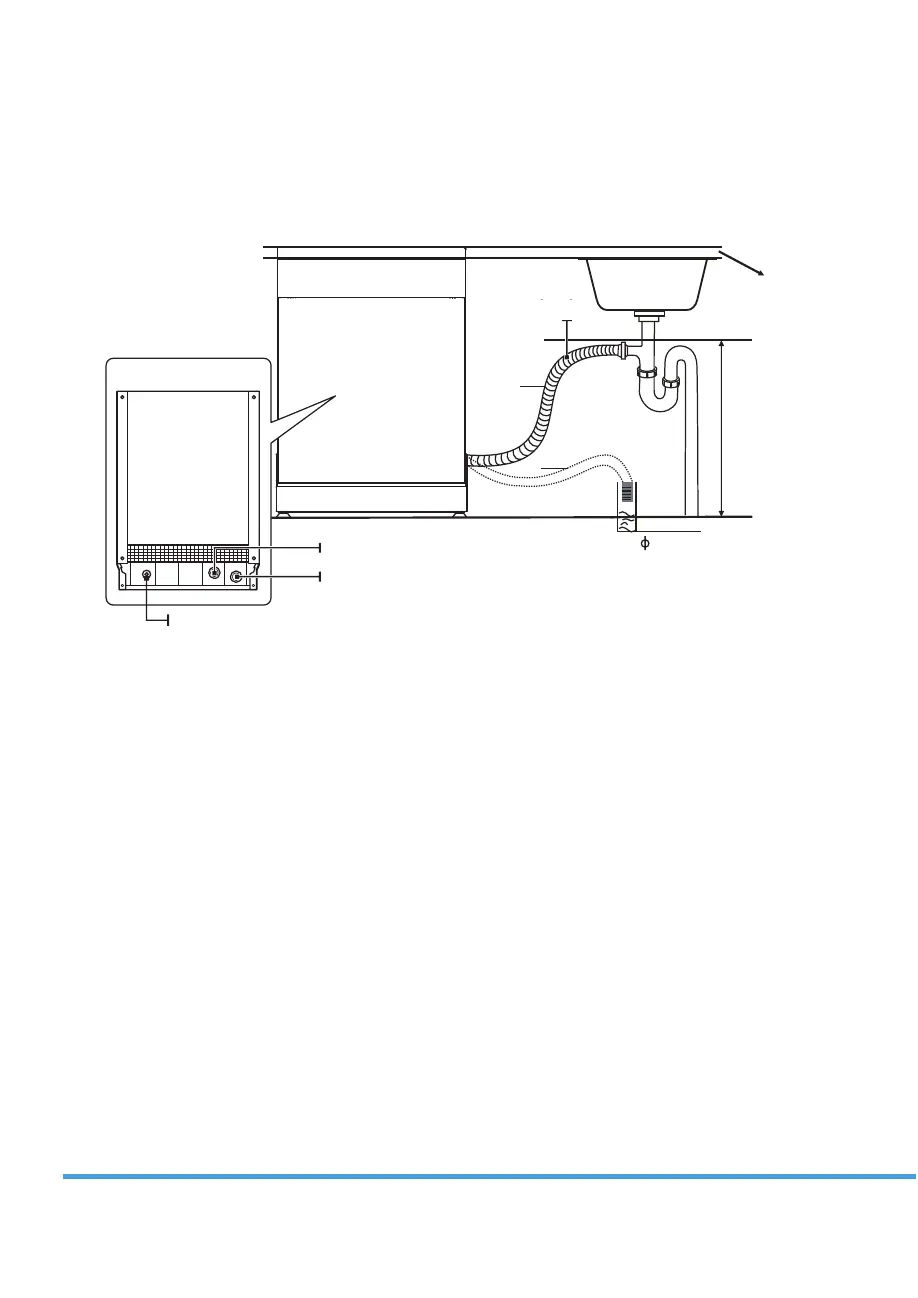
Connection Of Drain Hoses
*OTFSUUIFESBJOIPTFJOUPBESBJOQJQFXJUIBNJOJNVNEJBNFUFSPGDNPSMFUJUSVOJOUPUIFTJOLNBLJOH
TVSFUPBWPJECFOEJOHPSDSJNQJOHJU5IFIFJHIUPGESBJOQJQFNVTUCFMFTTUIBONN5IFGSFFFOEPGUIF
IPTFNVTUOPUCFJNNFSTFEJOXBUFSUPBWPJEUIFCBDLGMPXPGJU
1MFBTFTFDVSFMZGJYUIFESBJOIPTFJOFJUIFSQPTJUJPO"PSQPTJUJPO#
B
A
MAX 1000 mm
40 mm
Drain Pipe
#BDLPGEJTIXBTIFS
.BJOT$BCMF
8BUFS*OMFU
%SBJO1JQF
%SBJOIPTF
%SBJO1JQF
$PVOUFS
How to drain excess water from hoses
*GUIFDPOOFDUJPOUPUIFESBJOQJQFJTQPTJUJPOFEIJHIFSUIBONNFYDFTTXBUFSNBZSFNBJOJOUIFESBJO
IPTF*UXJMMCFOFDFTTBSZUPESBJOFYDFTTXBUFSGSPNUIFIPTFJOUPBCPXMPSTVJUBCMFDPOUBJOFSUIBUJTIFME
PVUTJEFBOEMPXFSUIBOUIFTJOL
Water outlet
$POOFDUUIFXBUFSESBJOIPTF5IFESBJOIPTFNVTUCFDPSSFDUMZGJUUFEUPBWPJEXBUFSMFBLT&OTVSFUIBUUIF
XBUFSESBJOIPTFJTOPULJOLFEPSTRVBTIFE
Extension hose
*GZPVOFFEBESBJOIPTFFYUFOTJPONBLFTVSFUPVTFBTJNJMBSESBJOIPTF
*UNVTUOPUCFMPOHFSUIBONFUFSTPUIFSXJTFUIFDMFBOJOHFGGFDUPGUIFEJTIXBTIFSDPVMECFSFEVDFE
Syphon connection
5IFXBTUFDPOOFDUJPONVTUCFBUBIFJHIUMFTTUIBONNNBYJNVNGSPNUIFCPUUPNPGUIFEJTIXBTIFS
Positioning The Appliance
1PTJUJPOUIFBQQMJBODFJOUIFEFTJSFEMPDBUJPO5IFCBDLTIPVMESFTUBHBJOTUUIFXBMMCFIJOEJUBOEUIFTJEFT
BMPOHUIFBEKBDFOUDBCJOFUTPSXBMMT5IFEJTIXBTIFSJTFRVJQQFEXJUIXBUFSTVQQMZBOEESBJOIPTFTUIBUDBO
CFQPTJUJPOFEFJUIFSUPUIFSJHIUPSUIFMFGUTJEFTUPGBDJMJUBUFQSPQFSJOTUBMMBUJPO
Bekijk gratis de handleiding van Philco PD 1468 DOW, stel vragen en lees de antwoorden op veelvoorkomende problemen, of gebruik onze assistent om sneller informatie in de handleiding te vinden of uitleg te krijgen over specifieke functies.
Productinformatie
Merk | Philco |
Model | PD 1468 DOW |
Categorie | Vaatwasser |
Taal | Nederlands |
Grootte | 4016 MB |