Perfect Aire 2PHG5000 handleiding
Handleiding
Je bekijkt pagina 5 van 12

5
MAXIMUM MOUNTING HEIGHT USING BRACKET FOR:
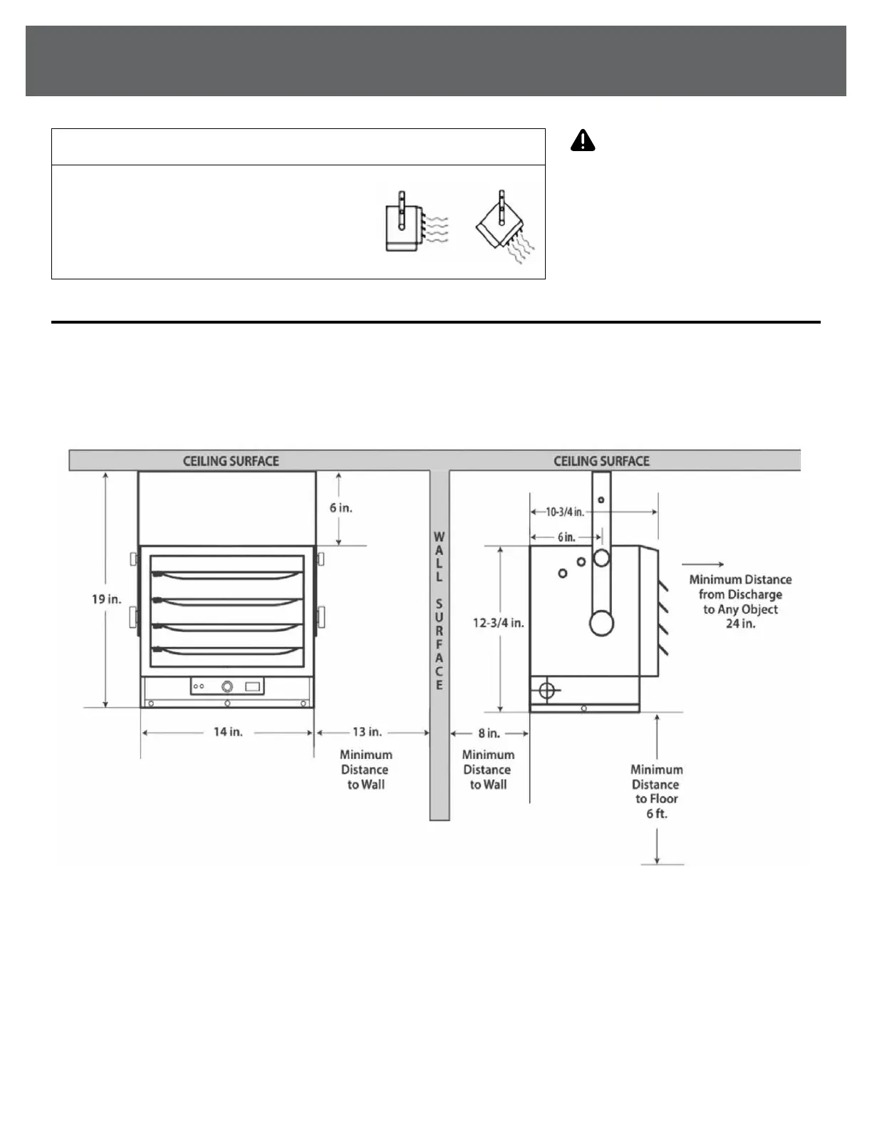
MOUNTING INSTRUCTIONS
Figure 1
NOTE: Diagram is not drawn to scale, for information purposes only.
NOTE: Product dimensions are approximate
and subject to change without notice.
HORIZONTAL / ANGLED AIR FLOW:
The maximum recommended ceiling height
for eective vertical air ow is 8 ft.
WARNING
FOR INDOOR USE ONLY, IN A DRY
LOCATION FREE OF GASOLINE,
PAINT, FLAMMABLE LIQUIDS
OR COMBUSTIBLE DUST OR
MATERIALS.
DO NOT USE EXTENSION CORDS.
Bekijk gratis de handleiding van Perfect Aire 2PHG5000, stel vragen en lees de antwoorden op veelvoorkomende problemen, of gebruik onze assistent om sneller informatie in de handleiding te vinden of uitleg te krijgen over specifieke functies.
Productinformatie
Merk | Perfect Aire |
Model | 2PHG5000 |
Categorie | Heater |
Taal | Nederlands |
Grootte | 1753 MB |