Peerless-AV Neptune Full Sun ODTV5504 handleiding
Handleiding
Je bekijkt pagina 68 van 84

68
2023-09-19 #:180-9178-1
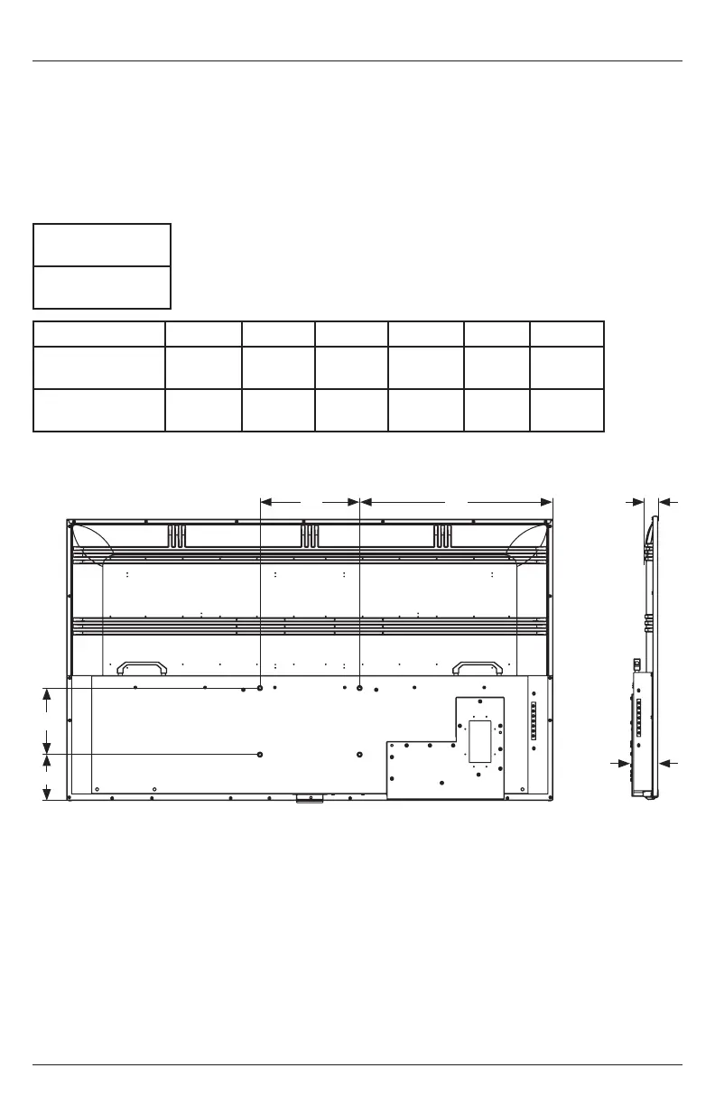
Vis de montage
requises
Quatre M8 screws
(20mm long)
Taille d’achage A B C D E F
55"
11.81"
(300mm)
7.87"
(200mm)
18.65"
(474mm)
4.61"
(117mm)
1.61"
(41mm)
3.11"
(79mm)
65"
11.81"
(300mm)
7.87"
(200mm)
22.89"
(582mm)
5.42"
(138mm)
1.61"
(41mm)
3.11"
(79mm)
VUE ARRIÈRE
VUE LATÉRALE
Préparation de l’écran pour le montage
Installez les cordons avant de procéder au montage de l’écran. Le panneau d’entrée peut être
obstrué après le montage de l’écran.
Pour votre sécurité, installer uniquement un support de montage extérieur assigné pour l’utilisation
prévue et qui supporte le poids de l’appareil. Pour un montage extérieur, utiliser des supports
de montage respectueux de l’environnement appropriés pour garantir la longévité dans les
environnements hostiles.
Consultez le tableau ci-dessous pour déterminer les spécications de montage de votre écran:
B
D
A
F
C E
Bekijk gratis de handleiding van Peerless-AV Neptune Full Sun ODTV5504, stel vragen en lees de antwoorden op veelvoorkomende problemen, of gebruik onze assistent om sneller informatie in de handleiding te vinden of uitleg te krijgen over specifieke functies.
Productinformatie
| Merk | Peerless-AV |
| Model | Neptune Full Sun ODTV5504 |
| Categorie | Televisie |
| Taal | Nederlands |
| Grootte | 11438 MB |

