Peerless-AV Neptune Full Sun ODTV5504 handleiding
Handleiding
Je bekijkt pagina 66 van 84

66
2023-09-19 #:180-9178-1
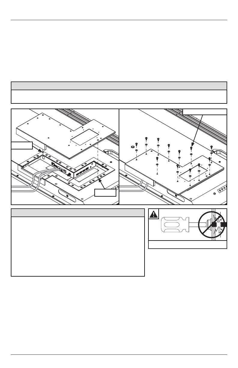
Replacer le couvercle du logement des I/O
1. Faites passer les câbles par le fond du logement des bornes des I/O, par-dessus le joint en
mousse. Tous les câbles doivent ressortir vers le bas de l’écran pour en garantir l’étanchéité
lorsque le couvercle du logement des I/O est remis en place. Ne faites pas passer les câbles
par le haut ni par les côtés du logement des I/O. Séparez les câbles d’environ 13 mm (1/2") pour
assurer l’étanchéité de l’appareil lorsque le couvercle du logement des I/O est installé.
2. Replacez le couvercle du logement des I/O en l’alignant sur les guides. Maintenez les câbles en
position entre les joints inférieurs.
3. Replacez les vis et et serrez jusqu’à ce que le joint du couvercle de la trappe E/S soit
complètement comprimé et de niveau avec l’arrière de l’écran.
AVERTISSEMENT
Le non-respect de ces instructions peut entraîner la détérioration ou la destruction du produit et
l’annulation de la garantie.
• S’assurer que le rayon de courbure du cordon ne
dépasse pas les limites xées par le fabricant.
• Assurez-vous que les câbles sont logés correctement
dans les goulottes pour leur éviter d’être endommagés
lorsque vous réinstallerez le couvercle.
• Ne faites pas passer les câbles par le haut ni par
les côtés de la trappe E/S. Tous les câbles doivent
être orientés vers le bas de l’écran an de préserver
l’étanchéité une fois le couvercle de la trappe E/S
installé.
AVERTISSEMENT
Ne pas serrer excessivement
guides
remettez en place
guides
Bekijk gratis de handleiding van Peerless-AV Neptune Full Sun ODTV5504, stel vragen en lees de antwoorden op veelvoorkomende problemen, of gebruik onze assistent om sneller informatie in de handleiding te vinden of uitleg te krijgen over specifieke functies.
Productinformatie
| Merk | Peerless-AV |
| Model | Neptune Full Sun ODTV5504 |
| Categorie | Televisie |
| Taal | Nederlands |
| Grootte | 11438 MB |

