Peerless-AV DS-LEDTK-20VX11S handleiding
Handleiding
Je bekijkt pagina 9 van 32

9
2020-07-13 #:146-9054-5 (2022-08-18)
ENG - When installing Peerless wall mounts on a wood stud wall covered with plywood, verify that the wood
studs are a minimum of 2" x 4" nominal size and plywood is a minimum Grade BC, 1/2" (13mm) thick. Plywood
may be covered by gypsum board (drywall) up to 5/8" thick.
WARNING
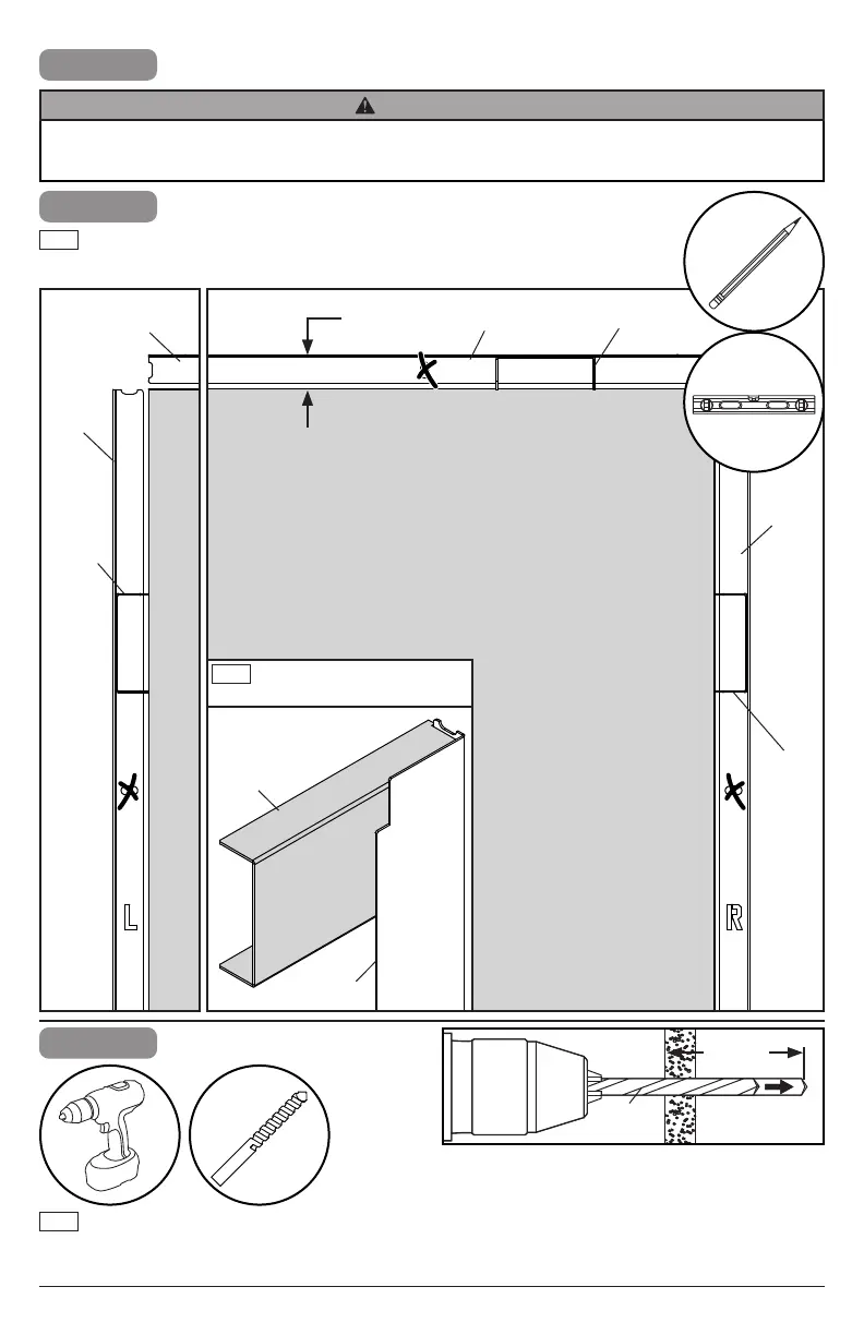
3a-1
Align wall bracket with edge of video wall. Use spacer to set nal position.
Mark mounting holes.
ENG
C
C,D
H
H
3a-2
Drill mounting holes into supporting surface
(1.75" (44mm) minimum depth required).
ENG
5/32"
(4mm)
1.75"
(44mm)
5/32"
(4mm)
1.375" (35mm)
Spacer oriented so notch faces
wall and wall brackets.
ENG
C,D,T
H
T
H
D,T
3a
Bekijk gratis de handleiding van Peerless-AV DS-LEDTK-20VX11S, stel vragen en lees de antwoorden op veelvoorkomende problemen, of gebruik onze assistent om sneller informatie in de handleiding te vinden of uitleg te krijgen over specifieke functies.
Productinformatie
| Merk | Peerless-AV |
| Model | DS-LEDTK-20VX11S |
| Categorie | Niet gecategoriseerd |
| Taal | Nederlands |
| Grootte | 2893 MB |







