Peerless-AV ACC-LA handleiding
Handleiding
Je bekijkt pagina 4 van 12

4
2015-03-04 #:009-9104-2 (2015-04-01)
1
2
ENG
ESP
FRN
DEU
NEL
ITL
ČEŠ
SLK
POR
TÜR
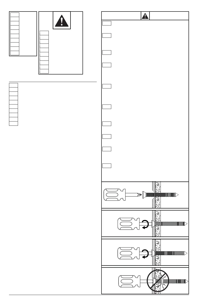
To properly tighten screws: Tighten until screw
head makes contact, then tighten another 1/2
turn. Do not overtighten screws.
Apriete adecuado de los tornillos: Apriete hasta
que la cabeza del tornillo haga contacto y luego
apriete otra 1/2 vuelta. No apriete de más los
tornillos.
Pour bien serrer les vis : Serrez jusqu’à ce que
la tête de la vis entre en contact, puis serrez
encore d’un 1/2 tour. Ne serrez pas trop les vis.
Korrektes Festziehen der Schrauben: Ziehen
Sie die Schrauben fest, bis der Schraubenkopf
Kontakt hat, und dann um eine weitere 1/2
Umdrehung. Ziehen Sie die Schrauben nicht
zu fest an.
Ga als volgt te werk om de schroeven naar
behoren aan te draaien: Draai de schroef aan
totdat de kop het oppervlak raakt; maak daarna
nog een halve slag. Draai de schroeven niet te
strak aan.
Per stringere correttamente le viti: stringere fi no
a quando la testa della vite fa contatto, quindi
stringere di un altro 1/2 giro. Non stringere
eccessivamente.
Správné utažení šroubů: Utahujte, dokud se
šroub nedostane do kontaktu, poté utáhněte
ještě půl otočky. Šrouby neutahujte příliš silně.
Správne utiahnutie skrutiek: Uťahujte, kým sa
skrutka nedostane do kontaktu, potom utiahnite
ešte pol otočky. Skrutky neuťahujte príliš silno.
Para apertar correctamente os parafusos:
aperte até que a cabeça do parafuso
estabeleça contacto e, em seguida, aperte mais
1/2 volta. Não aperte demasiado os parafusos.
Vidaları doğru bir şekilde sıkılamak için: Vida
başı temas edene kadar döndürün, sonra yarım
tur daha döndürün. Vidaları gereğinden fazla
sıkılamayın.
+1/2
4
3
Tools Needed for Assembly.
Herramientas necesarias para el ensamblaje.
Outils nécessaires au montage.
Für den Zusammenbau erforderliche Werkzeuge.
Voor montage benodigd gereedschap.
Attrezzi necessari per l’assemblaggio.
Nástroje potřebné k montáži.
Nástroje potrebné na montáž.
Ferramentas necessárias para a montagem.
Montaj İçin Gerekli Aletler.
ENG
ESP
FRN
DEU
NEL
ITL
ČEŠ
SLK
POR
TÜR
Symbols
Símbolos
Symboles
Symbole
Symbolen
Simboli
Symboly
Symboly
Símbolos
Semboller
ENG
ESP
FRN
DEU
NEL
ITL
ČEŠ
SLK
POR
TÜR
WARNING
ADVERTENCIA
ADVERTISSEMENT
ACHTUNG
WAARSCHUWING
AVVERTENZA
VÝSTRAHA
VÝSTRAHA
AVISO
UYARI
ENG
ESP
FRN
DEU
NEL
ITL
ČEŠ
SLK
POR
TÜR
Bekijk gratis de handleiding van Peerless-AV ACC-LA, stel vragen en lees de antwoorden op veelvoorkomende problemen, of gebruik onze assistent om sneller informatie in de handleiding te vinden of uitleg te krijgen over specifieke functies.
Productinformatie
| Merk | Peerless-AV |
| Model | ACC-LA |
| Categorie | Niet gecategoriseerd |
| Taal | Nederlands |
| Grootte | 1246 MB |
Caratteristiche Prodotto
| Kleur van het product | Zwart |
| Gewicht | 4200 g |
| Breedte | 285 mm |
| Diepte | 716 mm |
| Hoogte | 164 mm |







