Handleiding
Je bekijkt pagina 27 van 88

Čeština - 27 -
Montáž / Demontáž Podstavce
Přípravy
Vyjměte podstavec(ce) a televizor z balení a umístěte
televizor na pracovní stůl televizor na pracovní stůl
obrazovkou dolů na čistou, měkkou látku (deku, atd.)
• Použijte plochý a pevný stůl větší než je televizor.
• Neberte televizor za obrazovku.
• Dávejte pozor, abyste TV nepoškrábali nebo jinak
nepoškodili.
Montáž podstavce
1. Stojan(y) umístěte na schéma montáže
stojanu(ů) na zadní straně televizoru.
2. Vložte dodané šrouby (M4 x 12) a jemně
je utahujte, dokud nebude stojan správně
připevněn.
Odstranění podstavce z televizoru
Ujistěte se, že při použití závěsu na stěnu nebo při
opětovném balení televizoru demontujete podstavec
následujícím způsobem.
• Položte televizor na pracovní stůl s obrazovkou dolů
na čistý, měkký hadr Nechte stojan(y) přečnívat přes
okraj povrchu.
• Odšroubujte šrouby upevňující stojan(y).
• Demontujte stojan(y).
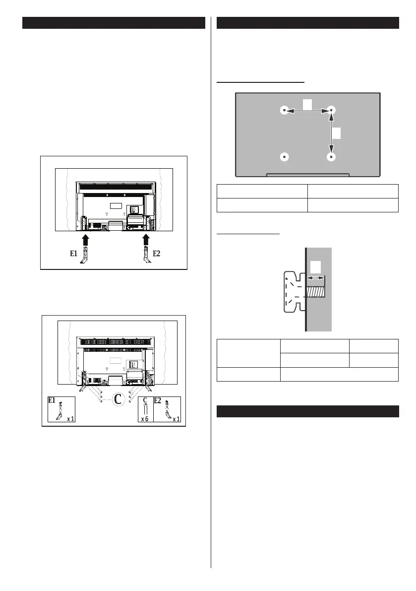
Při Použití Držáku pro Zavěšení na Zeď
Pro nákup doporučeného držáku pro zavěšení na
zeď se prosím obraťte na svého místního prodejce
Panasonic.
Otvory pro montáž držáku pro zavěšení na stěnu;
Zadní strana Televizoru
a
b
a (mm) 200
b (mm) 200
Pohled ze strany
a
Hloubka šrou-
bu (a)
min. (mm) 5
max. (mm) 10
Průměr M6
Poznámka: Šrouby pro upevnění televizoru na zavěšení na
stěnový držák nejsou součástí dodávky s televizorem.
Environmentální Informace
Tento TV přijímač byl navržen, aby byl šetrný k
životnímu prostředí. Pro snížení spotřeby energie
postupujte podle následujících kroků:
Pokud nastavíte Úsporu Energie na Minimální,
Střední, Maximální nebo Automatickou, televizor
v souladu s tím sníží spotřebu energie. Chcete-li
nastavit Podsvícení na pevnou hodnotu, nastavte ji
jako Vlastní a nastavte Podsvícení (umístěné pod
nastavením Úspory Energie) manuálně pomocí
levého nebo pravého tlačítka na dálkovém ovladači.
Pro vypnutí tohoto nastavení nastavte jako Vypnuto.
Poznámka: Dostupné možnosti Úspory Energie se mohou
lišit v závislosti na zvoleném Režimu v menu Obraz.
Nastavení Úspory Energie můžete najít v menu
Obraz. Některá nastavení obrazu není možné změnit.
Bekijk gratis de handleiding van Panasonic TX-48CX300E, stel vragen en lees de antwoorden op veelvoorkomende problemen, of gebruik onze assistent om sneller informatie in de handleiding te vinden of uitleg te krijgen over specifieke functies.
Productinformatie
| Merk | Panasonic |
| Model | TX-48CX300E |
| Categorie | Televisie |
| Taal | Nederlands |
| Grootte | 13317 MB |
Caratteristiche Prodotto
| Kleur van het product | Zwart, zilver |
| Energie-efficiëntieklasse (oud) | A |
| Bluetooth | Ja |
| Aan/uitschakelaar | Ja |
| Afstandsbediening | RC48125(RC5) |







