Handleiding
Je bekijkt pagina 5 van 19

English - 4 -
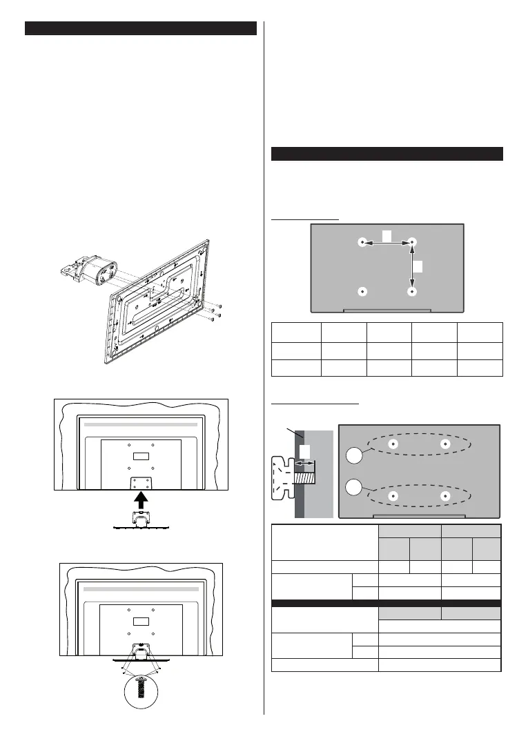
Removing the pedestal from the TV
Be sure to remove the pedestal in the following way
when using the wall-hanging bracket or repacking
the TV.
• Put the TV onto a work table with the screen panel
down on the clean and soft cloth. Leave the stand(s)
protruding over the edge of the surface.
• Unscrew the screws that fixing the stand(s).
• Remove the stand(s).
When using the wall-hanging bracket
Please contact your local Panasonic dealer to
purchase the recommended wall-hanging bracket.
Holes for wall-hanging bracket installation;
Rear of the TV
a
b
43” 50” 55” 65”
a (mm) 100 200 200 400
b (mm) 100 200 200 200
View from the side
c
VESA
Bracket
e
d
(d) (e)
43” 50”
55”
43” 50”
55”
Diameter M4 M6 M4 M6
Depth of screw (c)
min. 7 mm 5 mm
max. 10 mm 6 mm
(d) (e)
65”
Depth of screw (c)
min. 7 mm
max. 10 mm
Diameter M6
Note: The screws for fixing the TV onto the wall-hanging
bracket are not supplied with the TV.
Assembling / Removing the pedestal
Preparations
Take out the pedestal(s) and the TV from the packing
case and put the TV onto a work table with the screen
panel down on the clean and soft cloth (blanket, etc.)
• Use a flat and firm table bigger than the TV.
• Do not hold the screen panel part.
• Make sure not to scratch or break the TV.
CAUTION: Please refrain from inserting pictured screws to
the TV body when not using the TV stand e.g. wall hanging.
Inserting screws without pedestal may cause a damage of
the TV.
Assembling the pedestal
1. The stand of the TV consists of two pieces. Install
these pieces together.
2. Place the stand(s) on the stand mounting
pattern(s) on the rear side of the TV.
3. Insert the screws (M4 x 12 mm) provided and
tighten them gently until the stand is properly fitted.
x4
Bekijk gratis de handleiding van Panasonic TB-43W60, stel vragen en lees de antwoorden op veelvoorkomende problemen, of gebruik onze assistent om sneller informatie in de handleiding te vinden of uitleg te krijgen over specifieke functies.
Productinformatie
| Merk | Panasonic |
| Model | TB-43W60 |
| Categorie | Televisie |
| Taal | Nederlands |
| Grootte | 2263 MB |







