Panasonic CX-421 handleiding
Handleiding
Je bekijkt pagina 22 van 24

21
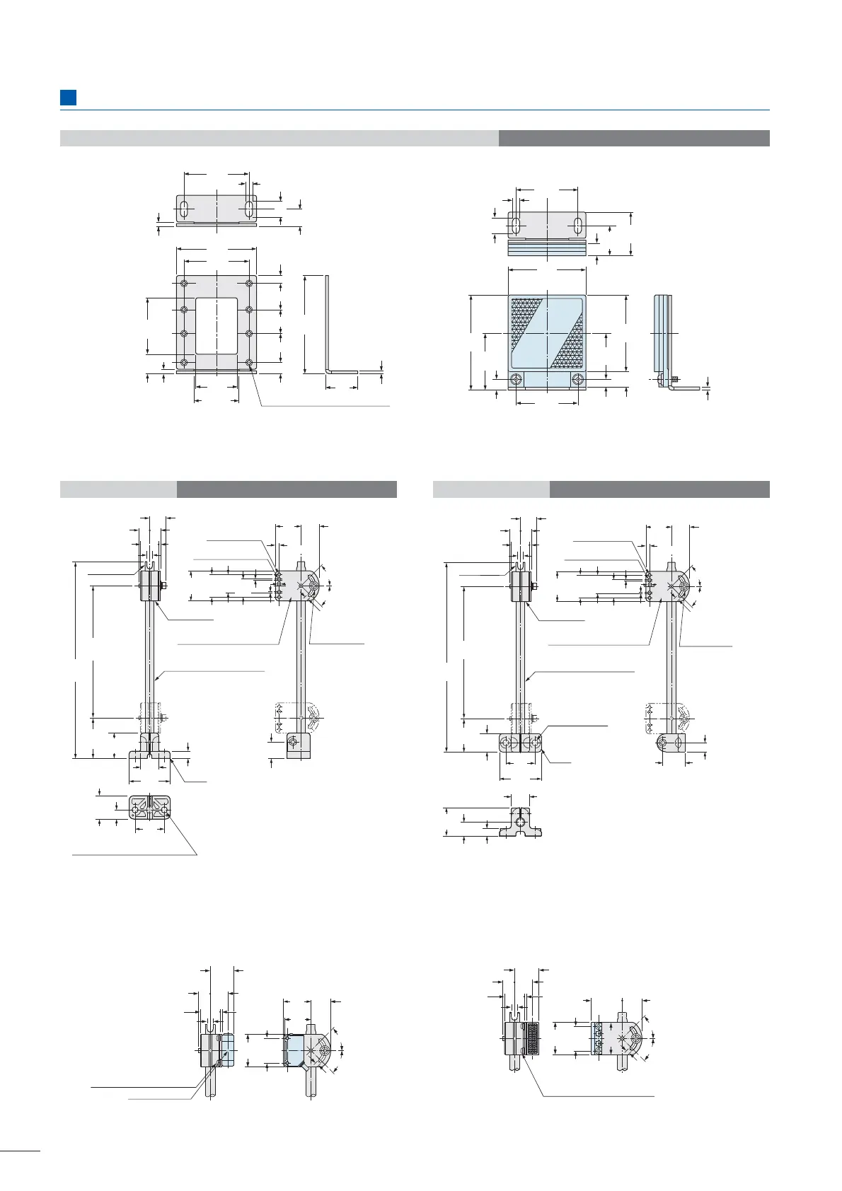
DIMENSIONS (Unit: mm in)
The CAD data in the dimensions can be downloaded from the website:
panasonic-electric-works.net/sunx
Assembly dimensions
Material: Cold rolled carbon steel (SPCC)
(Uni-chrome plated)
Two M4 (length 10 mm 0.394 in) screws with washers are attached.
40
1.575
4.5
0.177
3
0.118
10
0.394
11
0.433
50
1.969
40
1.575
5 0.197
16 0.630
15 0.591
18 0.709
7 0.276
20
0.787
t 2
t 0.079
8-M4×0.7 0.028 thru-hole threads
26
1.024
12
0.472
35
1.378
3
0.118
61
2.402
( )
( )
28
1.102
( )
40
1.575
4.5
0.177
28.3
1.114
19.3
0.760
8.3
0.327
10
0.394
50.3
1.980
49.3
1.941
5
0.197
t 2
t 0.079
10
0.394
30
1.181
61.3
2.413
7
0.276
37
1.457
40
1.575
( )
( )
25.5
1.004
10
0.394
2-ø6.6 ø0.260 mounting holes
45
1.772
32
1.260
Base
(PA)
8
0.315
18
0.709
20
0.787
28
1.102
20
0.787
1 0.039
20
0.787
1
0.039
25
0.984
33
1.299
17.8
0.701
12
0.472
11.8
0.465
44.5
1.752
218
8.583
147
5.787
28
1.102
45°
45°
t 2
t 0.079
6 0.236
20 0.787
Attachment
(Nylon 6)
M4 hexagon-
socket-head
bolt
2-ø3.2 ø0.126
mounting holes
2-3.2 0.126×4.2 0.165
oblong holes
ø10 ø0.394 pipe
[Stainless steel (SUS304)]
Sensor mounting bracket
[Stainless steel (SUS304)]
Cable guide
(POM)
4.2 0.165
3.2
0.126
(Note)
4
0.157
20
0.787
( )
( )
( )
Two M3 (length 14 mm 0.551 in) screws
with washers, two M3 (length 16 mm
0.630 in) screws with washers, two M3
(length 18 mm 0.709 in) screws with
washers, one auxiliary mounting plate for
EQ-20 series and one auxiliary mounting
plate for EX-40 series are attached.
11.8
0.465
20 0.787
17.8
0.701
12
0.472
t 2
t 0.079
2-ø3.2 ø0.126
mounting holes
2-3.2 0.126×4.2 0.165
oblong holes
45°
45°
4.2 0.165
3.2
0.126
M4 hexagon-
socket-head
bolt
1 0.039
1
0.039
20
0.787
25
0.984
33
1.299
20
0.787
Attachment
(Nylon 6)
Sensor mounting bracket
[Stainless steel (SUS304)]
ø10 ø0.394 pipe
[Stainless steel (SUS304)]
2-ø6.6 ø0.260
mounting holes
Base
(PA)
32
1.260
46
1.811
20
0.787
8
0.315
15
0.591
31
1.220
20
0.787
36.5
1.437
( )
( )
( )
147
5.787
(Note)
Cable guide
(POM)
10
0.394
24.5
0.965
20
0.787
210
8.268
28
1.102
6 0.236
4
0.157
Two M3 (length 14 mm 0.551 in) screws
with washers, two M3 (length 16 mm
0.630 in) screws with washers, two M3
(length 18 mm 0.709 in) screws with
washers, one auxiliary mounting plate for
EQ-20 series and one auxiliary mounting
plate for EX-40 series are attached.
Note: The dimensions in the brackets indicate the adjustable range of
the movable part.
Note: The dimensions in the brackets indicate the adjustable range of
the movable part.
Assembly dimensions with CX-400 series
(Mounting part only)
Assembly dimensions with RF-210 (Refl ector)
(Mounting part only)
20
0.787
11.8
0.465
33
1.299
20
0.787
28
1.102
27
1.063
17.6
0.693
45°
45°
t 2
t 0.079
6
0.236
Center of sensing
2-M3 (length14 mm 0.551 in)
screws with washers
4.2
0.165
25.4
1.000
23.2
0.913
18.4
0.724
24.8
0.976
45°
45°
t 2
t 0.079
25
0.984
33.3
1.311
31.8
1.252
20
0.787
2-M3 (length14 mm 0.551 in)
screws with washers
4.2
0.165
20
0.787
11.8
0.465
6
0.236
33
1.299
MS-RF23
Refl ector mounting bracket for RF-230 (Optional)
MS-AJ1
Universal sensor mounting stand (Optional)
MS-AJ2
Universal sensor mounting stand (Optional)
18/07/2011
Bekijk gratis de handleiding van Panasonic CX-421, stel vragen en lees de antwoorden op veelvoorkomende problemen, of gebruik onze assistent om sneller informatie in de handleiding te vinden of uitleg te krijgen over specifieke functies.
Productinformatie
| Merk | Panasonic |
| Model | CX-421 |
| Categorie | Niet gecategoriseerd |
| Taal | Nederlands |
| Grootte | 9675 MB |







