Olimpia Splendid Sitali CX 120 handleiding
Handleiding
Je bekijkt pagina 4 van 32

4
EXAUST
AIR
OUTSIDE
AIR
SUPPLY
AIR
RETURN
AIR
97O
97O
Questo documento è protetto d alle leggi vigen ti in materia di privacy e copyright. Nè è v ietata la copia, la diffusione senza
autorizzazione di Aerauliqa srl
This document is protected by privacy and copyright laws. No part of this document may be reproduced, adapted, trasmitted or
disclosed without the specific written consent of Aerauliqa srl. All right are reserved.
aera aqi lu
AERAULIQA SRL
Sede legale / Registered office: via M.Calderara 39 / 41
25018 Montichiari (Bs)
Sede operativa / Warehouse-offices: via M.Calderara 39 / 41
25018 Montichiari (Bs)
Tel: +39 030 674681 Fax: +39 030 6872149
C.F. e P.IVA 03369930981 - REA BS-528635 www.aerauliqa.it
Descrizione/Description:
Materiale/Material: Data/Date: Firma/Signature:
Terraroli Stefano27/11/2020-
QR 120 - VERSIONE A PARETE
DIMENSIONI
Rev. Descrizione/Description Data/Date Firma/Sign.
-- - TS
\Progetti\..\
ARCHIVIO CAD:
AQD.01739.00
004923
1:5
No. Dis/No. Drawing: Codice/Code: Scala/Scale:
-
Peso/Weight:
649
171
141
94
CONDENSATION
DRAIN Ø16
117 235 152
127 250 127
251 253
504
347
159
237
33
33
809
743
534
112519112
DETAIL A
A
9
29
EXAUST
AIR
OUTSIDE
AIR
SUPPLY
AIR
RETURN
AIR
97
O
97O
Questo documento è protetto d alle leggi vigen ti in materia di privacy e copyright. Nè è v ietata la copia, la diffusione senza
autorizzazione di Aerauliqa srl
This document is protected by privacy and copyright laws. No part of this document may be reproduced, adapted, trasmitted or
disclosed without the specific written consent of Aerauliqa srl. All right are reserved.
aera aqi lu
AERAULIQA SRL
Sede legale / Registered office: via M.Calderara 39 / 41
25018 Montichiari (Bs)
Sede operativa / Warehouse-offices: via M.Calderara 39 / 41
25018 Montichiari (Bs)
Tel: +39 030 674681 Fax: +39 030 6872149
C.F. e P.IVA 03369930981 - REA BS-528635 www.aerauliqa.it
Descrizione/Description:
Materiale/Material: Data/Date: Firma/Signature:
Terraroli Stefano27/11/2020-
QR 120 - VERSIONE A PARETE
DIMENSIONI
Rev. Descrizione/Description Data/Date Firma/Sign.
-- - TS
\Progetti\..\
ARCHIVIO CAD:
AQD.01739.00
004923
1:5
No. Dis/No. Drawing: Codice/Code: Scala/Scale:
-
Peso/Weight:
649
171
141
94
CONDENSATION
DRAIN Ø16
117 235 152
127 250 127
251 253
504
347
159
237
33
33
809
743
534
112519112
DETAIL A
A
9
29
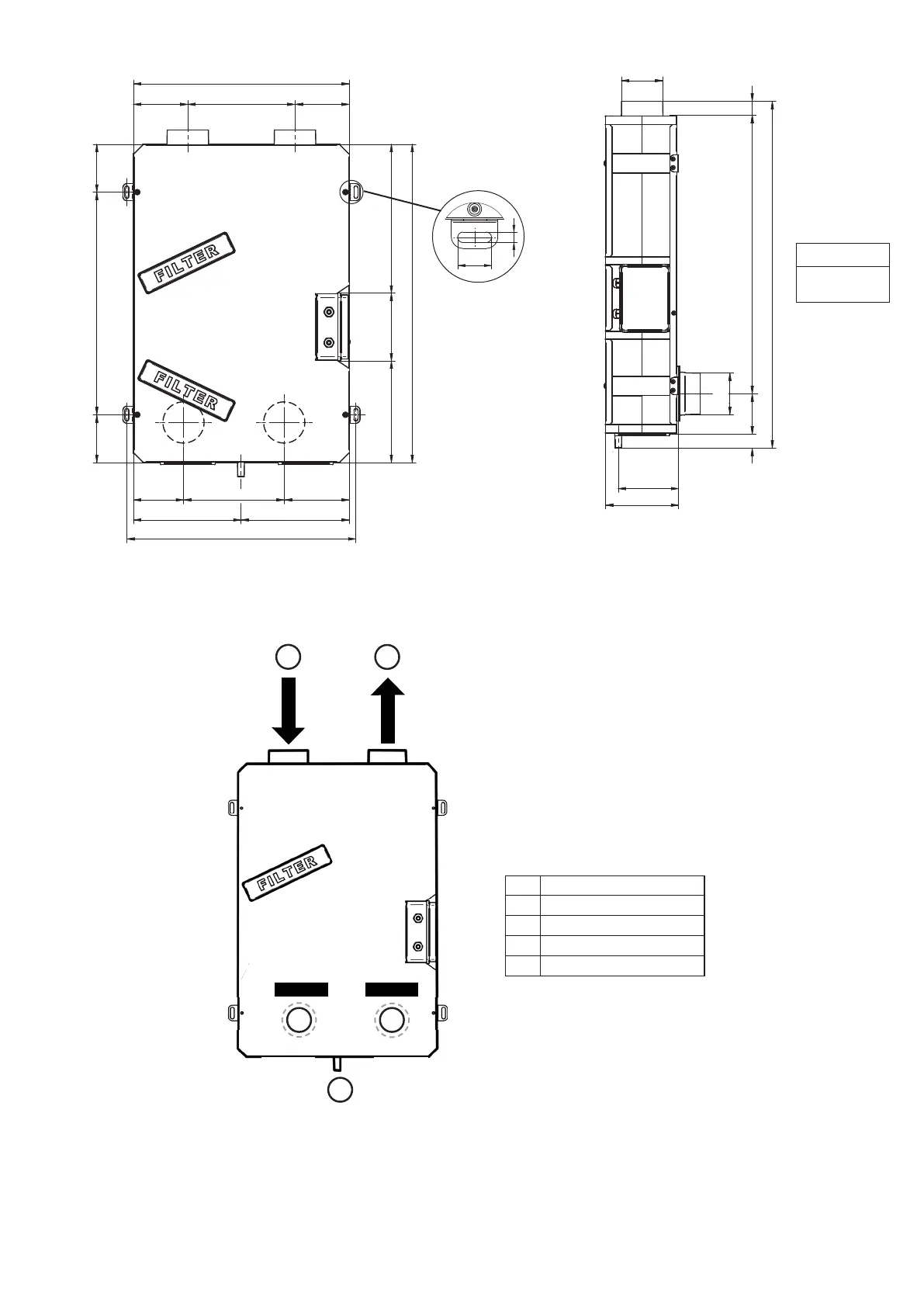
3.2 Dimensioni e Peso
Peso Kg
11,5
504
Ø97
Fig.3.a
519
743
QR120P-I
534
239 155 348
250
275 127102
127 127
97
O
97
O
16
O
97
O
97
O
A
DETAIL A
9
29
SCARICO CONDENSA
CONDENSATION DRAIN
34 741 34
85 85
85 105
INSERIRE
VISTA CON FILTRI
E SCAMBIATORE
TRATTEGGIATI
E SIMBOLI DEI VARI FLUSSI
(COME DA ETICHETTA FLUSSI)
min. 300 mm
534
152235117
809
33
Ø97
3.3 Connessioni delle tubazioni
Fig.3.b Vista lato filtri
251 253
112112
127250127
237 159 347
33
649
94
141
171
A Ingresso aria dall’esterno
B Espulsione aria verso l’esterno
C Aria fornita all’interno
D Aria estratta dall’interno
E Scarico condensa
E
B
EXTRACT
D
SUPPLY
C
EXHAUST
A
INTAKE
Dimensioni in mm.
Bekijk gratis de handleiding van Olimpia Splendid Sitali CX 120, stel vragen en lees de antwoorden op veelvoorkomende problemen, of gebruik onze assistent om sneller informatie in de handleiding te vinden of uitleg te krijgen over specifieke functies.
Productinformatie
| Merk | Olimpia Splendid |
| Model | Sitali CX 120 |
| Categorie | Niet gecategoriseerd |
| Taal | Nederlands |
| Grootte | 4152 MB |







