Olimpia Splendid Bi2 SLIR NAKED handleiding
Handleiding
Je bekijkt pagina 172 van 256

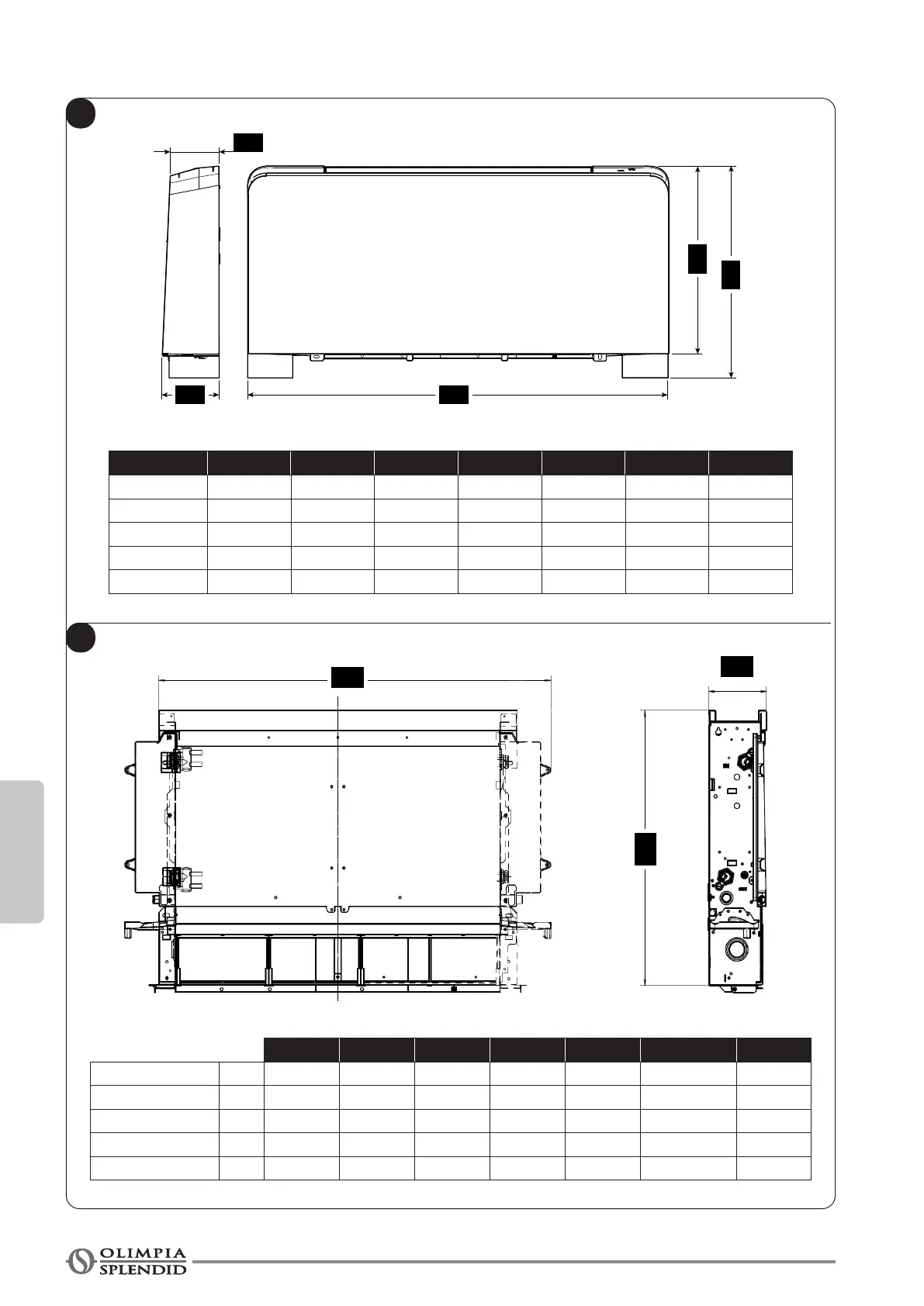
A
SL / SLR 200 400 600 800 1000
1100-1400
1600
A (mm) 695 895 1095 1295 1495 1345 1415
B (mm) 599 599 599 599 599 599 599
C (mm) 679 679 679 679 679 719 719
D (mm) 129 129 129 129 129 179 179
E (mm) 150 150 150 150 150 200 200
A
B
C
E
D
A
B
C
B
PORTOGUÊS
PT - 8
1.1 - DIMENSÕES GERAIS (Fig.A)
200 400 600 800 1000
1100-1400
1600
A mm 525 725 925 1125 1325 1110 1180
B mm 576 576 576 576 576 599 599
C mm 126 126 126 126 126 198 198
Peso liquido SLIR
kg 9 12 15 18 21 20 21
Peso liquido SLI
kg 7 9,5 11 14 17 18 19,5
Bekijk gratis de handleiding van Olimpia Splendid Bi2 SLIR NAKED, stel vragen en lees de antwoorden op veelvoorkomende problemen, of gebruik onze assistent om sneller informatie in de handleiding te vinden of uitleg te krijgen over specifieke functies.
Productinformatie
| Merk | Olimpia Splendid |
| Model | Bi2 SLIR NAKED |
| Categorie | Niet gecategoriseerd |
| Taal | Nederlands |
| Grootte | 31436 MB |







