Handleiding
Je bekijkt pagina 9 van 41

Page 8 of 40
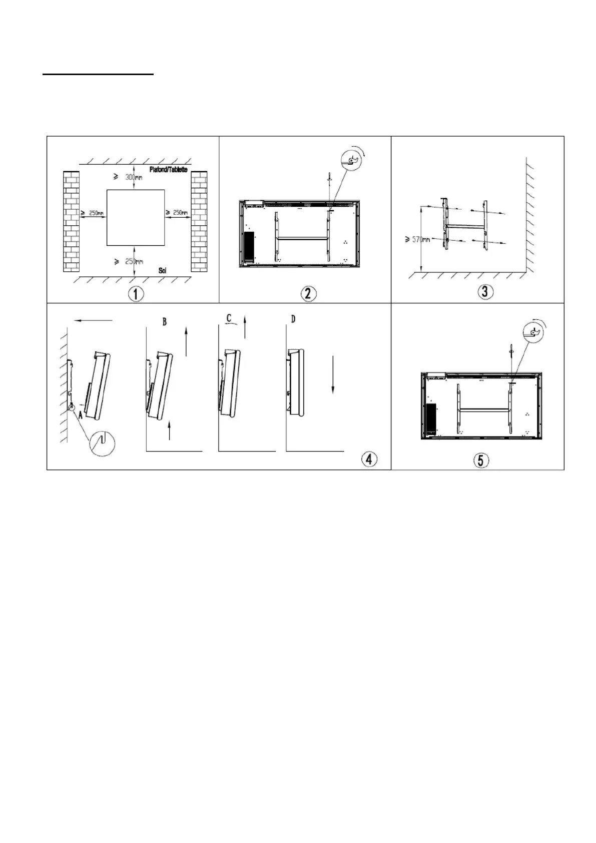
FIXATIONS
Pour accrocher votre radiateur au mur:
1. Choisissez un emplacement adéquat pour le
chauffage. (Fig 1)
2. Démontez le support mural en desserrant la vis
(pas dévisser, desserrer seulement) et en faisant
glisser la tranche de métal hors du trou. Sortez le
support en tirant vers le bas. (Fig 2)
3. Vérifiez que le support est parfaitement horizontal
avec un niveau à bulle, puis marquez l’emplacement
des 4 trous de fixation sur le mur. Percez les 4 trous
dans le mur en utilisant une mèche adaptée au
diamètre des chevilles. Insérez les chevilles dans les
trous, puis vissez solidement le support de fixation
murale sur le mur. (Fig 3)
Bekijk gratis de handleiding van Oceanic OCEAISHDC1500W, stel vragen en lees de antwoorden op veelvoorkomende problemen, of gebruik onze assistent om sneller informatie in de handleiding te vinden of uitleg te krijgen over specifieke functies.
Productinformatie
Merk | Oceanic |
Model | OCEAISHDC1500W |
Categorie | Heater |
Taal | Nederlands |
Grootte | 5838 MB |