Handleiding
Je bekijkt pagina 28 van 41

Page 27 of 40
WALL-MOUNTED KITS
Description
Drawing
Spec
QTY
Screw
3.9 x 30 mm
5
Wall plug
(not provided)
Φ8mm
4
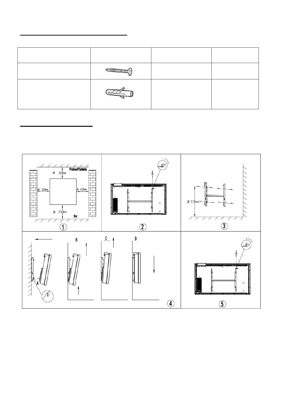
INSTALLATION
To hang the heater on the wall:
1. Choose a suitable installation location for the
heater. (Fig 1)
2. Disassemble the wall bracket by loosening the
screw (do not remove, only loosen) and slide the
metal plate out of the hole. Take out the bracket by
Bekijk gratis de handleiding van Oceanic OCEAISHDC1000W, stel vragen en lees de antwoorden op veelvoorkomende problemen, of gebruik onze assistent om sneller informatie in de handleiding te vinden of uitleg te krijgen over specifieke functies.
Productinformatie
Merk | Oceanic |
Model | OCEAISHDC1000W |
Categorie | Heater |
Taal | Nederlands |
Grootte | 5838 MB |