Handleiding
Je bekijkt pagina 33 van 50

Page 32 of 48
INSTALLATION
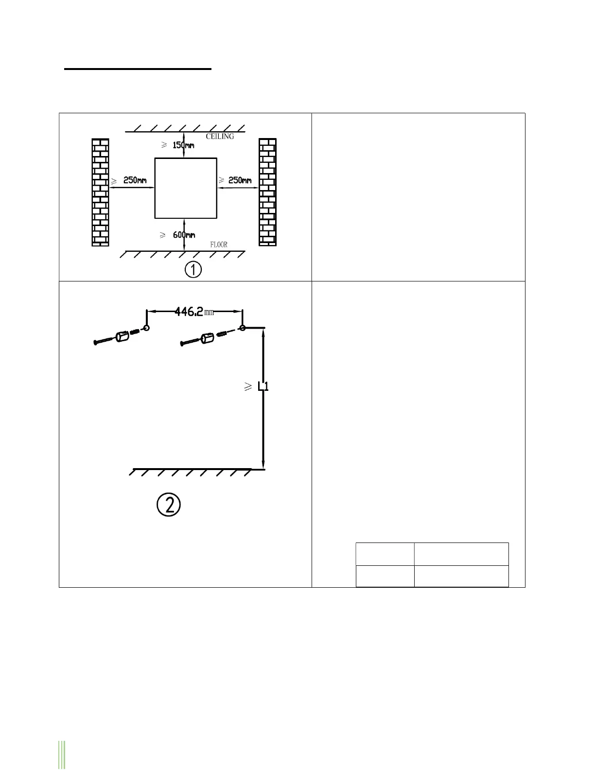
To hang the heater on the wall:
Choose a suitable
installation location for
the heater. Observe
the minimum
distances of obstacles.
Fix the 2 wall tubes
(smaller ones) to a
strong, flat wall using
the appropriate screws
and wall plugs
according to the
dimensions shown in
the installation
diagram.
HJ8EDF
L1 >=1937.5mm
Bekijk gratis de handleiding van Oceanic OCEAISH1750W0, stel vragen en lees de antwoorden op veelvoorkomende problemen, of gebruik onze assistent om sneller informatie in de handleiding te vinden of uitleg te krijgen over specifieke functies.
Productinformatie
Merk | Oceanic |
Model | OCEAISH1750W0 |
Categorie | Wasdroger |
Taal | Nederlands |
Grootte | 5962 MB |