Handleiding
Je bekijkt pagina 31 van 48

Page 29 of 42
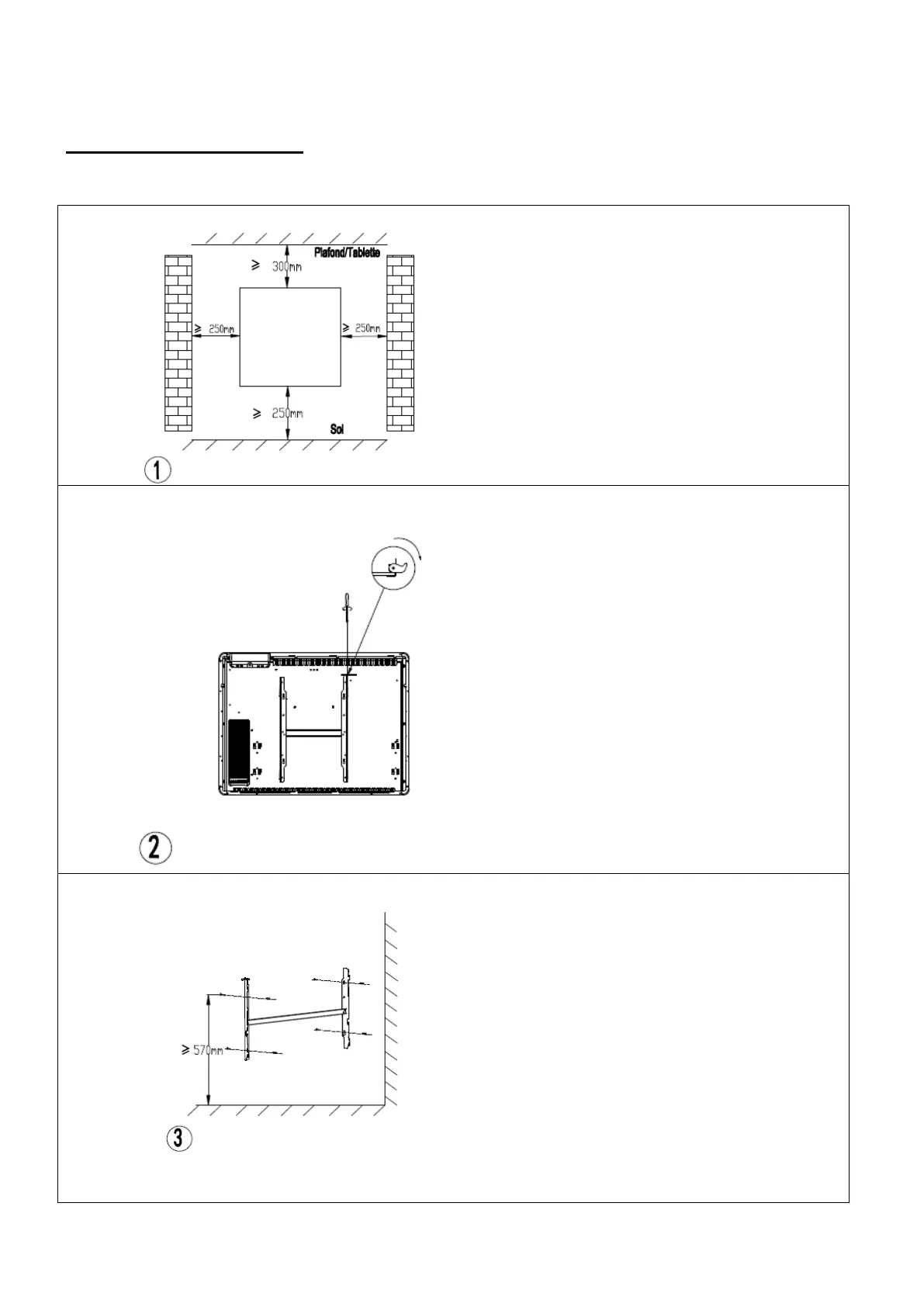
INSTALLATION
To hang the heater on the wall:
Choose a suitable
location for the
radiator (respect the
minimum distances)
Loosen the bracket
fixing screw without
unscrewing it
completely.
Slide the metal latch
out of the hole.
Remove the bracket by
pulling down.
Position the wall
bracket where you
want it. Make sure the
spirit level is
horizontal.
Mark the location of the 4 wall fixing screws.
Bekijk gratis de handleiding van Oceanic OCEAISH1500W4, stel vragen en lees de antwoorden op veelvoorkomende problemen, of gebruik onze assistent om sneller informatie in de handleiding te vinden of uitleg te krijgen over specifieke functies.
Productinformatie
Merk | Oceanic |
Model | OCEAISH1500W4 |
Categorie | Heater |
Taal | Nederlands |
Grootte | 6292 MB |