Handleiding
Je bekijkt pagina 25 van 73

FR-25
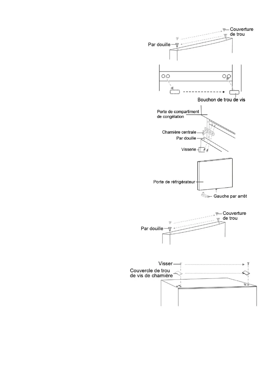
12. Déplacez la douille de porte du côté
droit supérieur de la porte du
congélateur vers le côté gauche
supérieur de la porte. Et déplacez le
couvercle du trou gauche vers la
droite.
13. Retirer le bouchon du trou de vis de la
charnière centrale sur le côté gauche de
l'armoire, puis l'installer dans les trous
de vis sur le côté droit de l'armoire.
14. Installez la charnière centrale sur le
côté gauche avec les deux vis que vous
avez retirées précédemment.
15. Retirez la butée de porte gauche du
sac d'accessoires et installez-la en bas
à gauche de la porte du réfrigérateur.
16. Installez la porte du compartiment du
réfrigérateur.
17. Déplacez la douille de porte du
côté supérieur droit de la porte du
réfrigérateur vers le côté supérieur
gauche de la porte. Et déplacez le
couvercle du trou gauche vers la
droite.
18. Retirez la vis qui retient le
couvercle du trou de vis de la
charnière du côté supérieur
gauche de l'armoire, retirez le
couvercle et fixez le couvercle
sur le côté supérieur droit de
l'armoire.
Bekijk gratis de handleiding van Oceanic OCEAFC207W, stel vragen en lees de antwoorden op veelvoorkomende problemen, of gebruik onze assistent om sneller informatie in de handleiding te vinden of uitleg te krijgen over specifieke functies.
Productinformatie
Merk | Oceanic |
Model | OCEAFC207W |
Categorie | Koelkast |
Taal | Nederlands |
Grootte | 5189 MB |