Handleiding
Je bekijkt pagina 17 van 78

INSTALLATION MANUAL
INSTALLATION
17
Standard Installation (without EZ1 brackets)
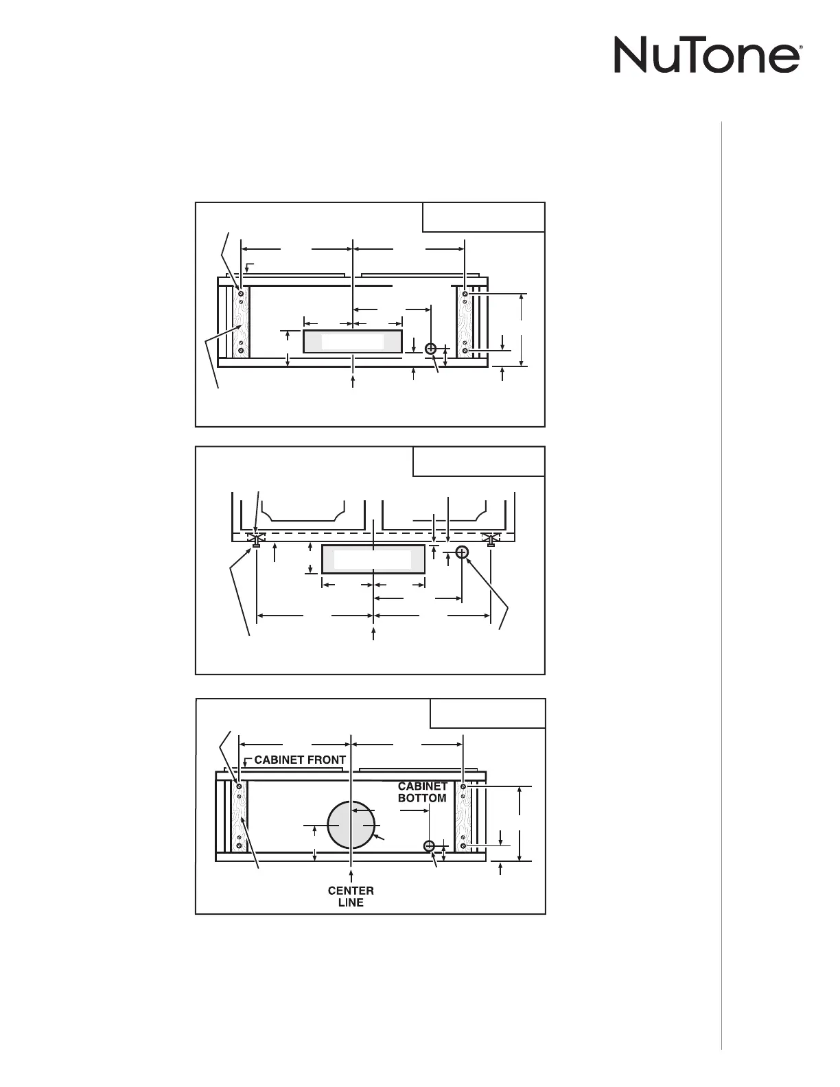
1 ] Use the proper diagram below for placement of ductwork and electrical cutout in cabinet
or wall. For a non-ducted installation, DO NOT cut a duct access hole, only cut the hole for
electrical wiring.
2 ] Install part-way four (4) ROUND HEAD no. 8 x 5/8” mounting screws into shims/cabinet,
according to the proper diagram above. (Mounting screws are included in parts bag, but wood
shims and shim mounting screws are not included).
VERTICAL DUCT
ACCESS HOLE
10
15
/16"
5¼"
5¼"
CENTER
LINE
HOOD MOUNTING SCREWS (4)
ELECTRICAL
ACCESS HOLE
(
IN CABINET BOTTOM)
WOOD SHIMS
(
RECESSED-BOTTOM
CABINETS
ONLY)
CABINET FRONT
3/4"
1⅜"
1½"
7³/16"
12⅞"
4
7
/16"
CABINET
BOTTOM
12⅞"
3¼" X 10"
VERTICAL DUCTING
CABINET
BOTTOM
CABINET FRONT
HORIZONTAL DUCT
ACCESS HOLE
HOOD
MOUNTING
SCREWS (4)
ELECTRICAL
ACCESS HOLE
(
IN WALL)
3⅞"
CENTER
LINE
WOOD SHIMS
(RECESSED-BOTTOM
CABINETS
ONLY)
13/16"
3/16"
5¼"
5¼"
12⅞" 12⅞"
7³/
16"
3¼" X 10"
HORIZONTAL DUCTING
ELECTRICAL
ACCESS HOLE
(
IN CABINET BOTTOM)
HOOD MOUNTING SCREWS (4)
4¹¹/16"
8" DIA.
HOLE
7-IN. ROUND
7-IN. ROUND
DUCT
DUCT
ACCESS
ACCESS
HOLE
HOLE
7-IN. ROUND
DUCT
ACCESS
HOLE
WOOD SHIMS
(
RECESSED-BOTTOM
CABINETS
ONLY)
12⅞" 12⅞"
10
15
/16"
1½"
1⅜"
7³/
16"
7-IN. ROUND
VERTICAL DUCTING
Bekijk gratis de handleiding van NuTone AVDF130SS, stel vragen en lees de antwoorden op veelvoorkomende problemen, of gebruik onze assistent om sneller informatie in de handleiding te vinden of uitleg te krijgen over specifieke functies.
Productinformatie
| Merk | NuTone |
| Model | AVDF130SS |
| Categorie | Afzuigkap |
| Taal | Nederlands |
| Grootte | 10945 MB |







