Handleiding
Je bekijkt pagina 55 van 131

English - 53
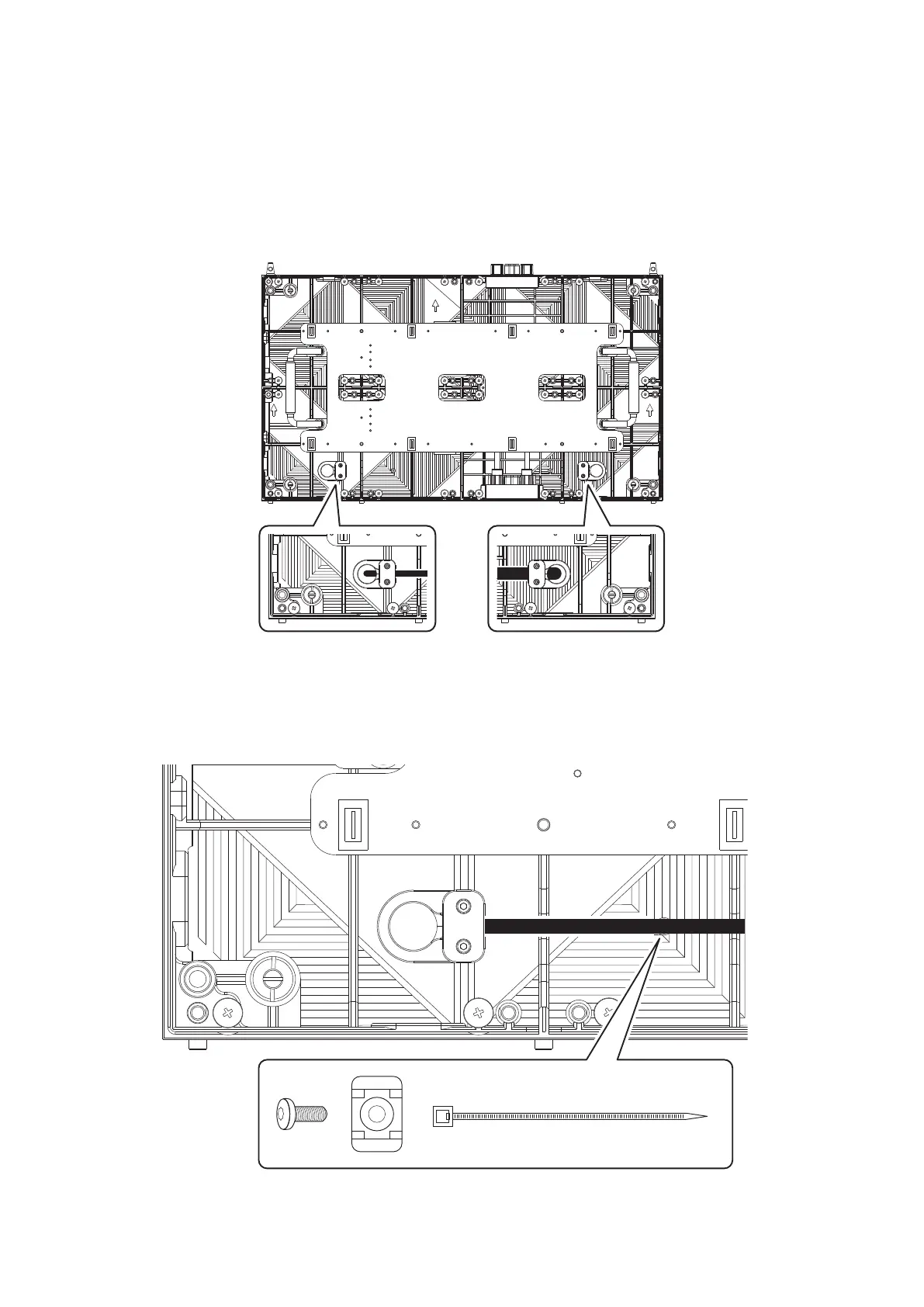
Remove the cable holder xing ring attached to the LAN cable or power cord.
Remove the cable xing part and move the cable holder to the end of the cable.
Attach the cable holder to the backside hole of the cabinet and attach the cable holder xing ring from the
outside of the cabinet.
Insert the cables.
Pinch the cable with the cable xing part and attach it to the cable holder.
LAN cable power cord
Front
[Info] For xing the cable
Attache the buckle by screw.
Through the fastening tie lap and x the cable to use fastening tie lap.
Connect the Power cable using WAGO.
Bekijk gratis de handleiding van Nec LED-FE012i2, stel vragen en lees de antwoorden op veelvoorkomende problemen, of gebruik onze assistent om sneller informatie in de handleiding te vinden of uitleg te krijgen over specifieke functies.
Productinformatie
| Merk | Nec |
| Model | LED-FE012i2 |
| Categorie | Monitor |
| Taal | Nederlands |
| Grootte | 21442 MB |







