MSW -WP-30T-P handleiding
Handleiding
Je bekijkt pagina 6 van 53

10
Rev. 09.12.2016
11
Rev. 09.12.2016
4. Schließen Sie das Ablassventil in der Nähe der Hebelhandpumpe, indem sie dieses in Richtung des
Uhrzeigersinns drehen.
5. Pumpen Sie mit dem Hebel (oder bei Nutzung eines pneumatischen Motors über den Knopf am
Ventil), bis sich der Kolben dem Werkstück nähert.
6. Richten Sie das zu bearbeitende Element an der Achse und dem Kolben aus, um einen symmetrisch
verteilten Druck zu gewährleisten.
7. Wenn sich der Kolben an dem zu bearbeitenden Element bendet, muss die Anzeige des Manometers
genau kontrolliert werden, damit die Presse nicht überlastet wird (maximaler Druck: 666 bar / 9656
psi - 30 t).
8. Regulieren Sie den Anwendungsdruck auf das zu bearbeitende Element durch weiteres Pumpen, bis die
gewünschte Einstellung erreicht ist.
Rückzug des Kolbens:
1. Die Verwendung des Hebels muss eingestellt werden (bzw. weiteres Pumpen von Luft einstellen), das
Ablassventil ist langsam zu öffnen, indem es entgegen dem Uhrzeigersinn gedreht wird. Sichern Sie das
bearbeitete Element, damit es während des Druckablasses nicht von der Arbeitsäche fällt.
2. Nehmen Sie das bearbeitete Element erst dann heraus, wenn der Kolben vollständig zurückgefahren
ist.
MSW-WP-50T-P
Wirkung
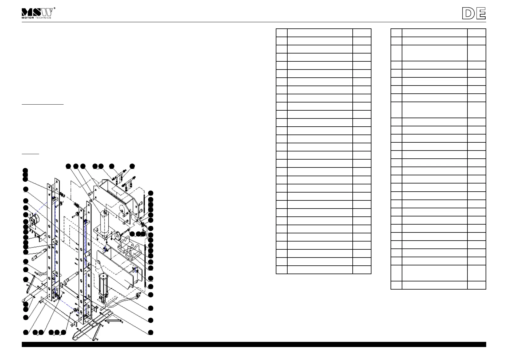
Montage der hydraulischen Presse:
Nr. Beschreibung Menge
1. Federscheibe Ø22 8
2. Unterlagen Ø22 8
3. Muttern M22 8
4. Posten links 1
5. Schrauben M10x20 4
6. Schrauben M10x30 3
7. Motorwinde 1
8. Windenunterstützung 1
9. Unterlagen Ø10 3
10. Muttern M10 3
11. Schrauben M10x30 2
12. Unterlagen a Ø10 2
13. Muttern a M10 2
14. Stifte 2
15. Beinstütze 4
16. Schrauben M12x30 12
17. Beine 2
18. Unterlagen a Ø12 12
19. Muttern M12 12
20. Schrauben M12x35 8
21. Stütze 2
22. Unterlagen Ø12 8
23. Muttern M12 8
24. Rollenachse 4
25. Rolle 4
26. Splint Ø4x18 4
27. Posten rechts 1
28. Griff 1
29. Pump / Druckluftmotor 1
Nr. Beschreibung Menge
29. Pumpe / Druckluftmotor 1
30. Verstellbare Unterstützung
des Arbeitstisches
1
31. Hydraulikschlauch 1
32. Stahlseil 2
33. Schrauben M10x65 4
34. Platte Arbeitstisch 2
35. Unterlagen Ø5 3
36. Schrauben zur Montage des
Manometers M5x10
3
37. Manometer 1
38. Unterlagen Ø10 1
39. Schrauben M10x20 1
40. Schnellspanner 1
41. Montageplatte 1
42. Hydraulikverteiler 1
43. Unterlagen Ø10 1
44. O-Ring Ø9x2.65 1
45. Muttern M10 1
46. Hydraulikschlauch 1
47. Federscheibe 4
48. Rollenachse 2
49. Rolle 4
50. Federscheibe Ø15 4
51. Oberer Träger 1
52. Schrauben M22x60 8
53. Servomotor 1
54. O-Ring Ø12.5x1.8 1
55. Zentraler Anschluss Mano-
meter
1
56. Anschluss Manometer 1
1
2
3
4
5
6
7
8
9
10
11
12
13
14
15
16
17
18
19
20
21 22 23 24 25 26
27
28
29
30
31
32
33
34
35
36
37
38
39
40
41
42
43
44
45
46
47484950515253
54 5556
Bekijk gratis de handleiding van MSW -WP-30T-P, stel vragen en lees de antwoorden op veelvoorkomende problemen, of gebruik onze assistent om sneller informatie in de handleiding te vinden of uitleg te krijgen over specifieke functies.
Productinformatie
| Merk | MSW |
| Model | -WP-30T-P |
| Categorie | Niet gecategoriseerd |
| Taal | Nederlands |
| Grootte | 9244 MB |







