MSW -RPJ1500 handleiding
Handleiding
Je bekijkt pagina 9 van 19

17 Šroub
18 Pouzdro zvedáku
19 Podložka
20 Pružina
21 Čep pružiny
22 Osa
23 Ozubené kolo
24 Sedlo osy
25 Podložka západkového mechanismu
26 Pouzdro adaptéru osy
27 Pružný čep
1. Základna
2. Páka
3. Horní podpěra
4. Dolní podpěra
5. Horní západka
6. Dolní západka
7. Axiální kroužek
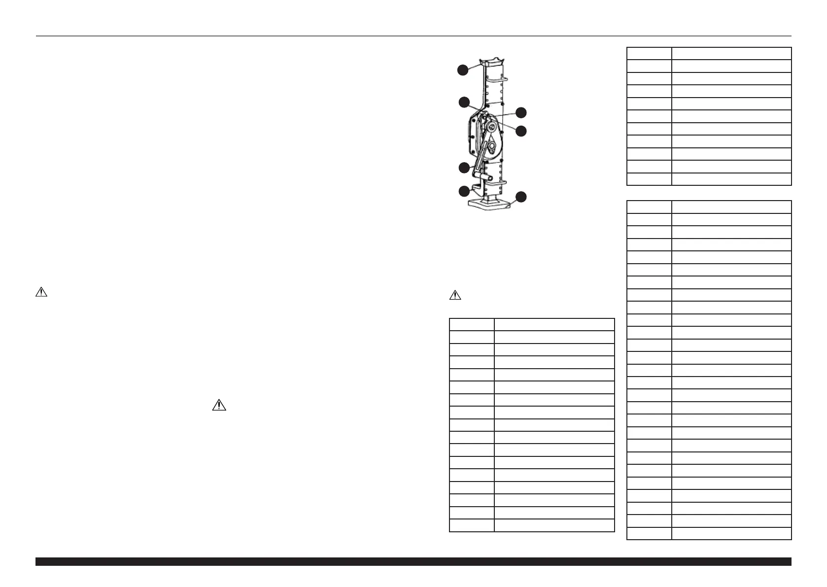
Výkres sestavení
Číslo dílu Popis
1 Tělo zvedáku
2 Šestihranný šroub
3 Ozubená tyč
4 Osa
5 Pružný čep
6 Levá podpěra
7 Podložka
8 Šestihranná matice
9 Pružina západky
10 Dolní západkový mechanismus
11 Horní západkový mechanismus
12 Kroužek osy
13 Kolo západkového mechanismu
14 Podložka západkového mechanismu
15 Pouzdro zvedáku
16 Pojistná matice
CZ
17
Rev. 18.03.2021
MSW-RPJ1500 / MSW-RPJ3000
MSW-RPJ5000
Číslo dílu Popis
1 Tělo zvedáku
2 Šestihranný šroub
3 Ozubená tyč
4 Osa
5 Pružný čep
6 Osa
7 Levá podpěra
8 Podložka
9 Šestihranná matice
10 Pružina západky
11 Dolní západkový mechanismus
12 Horní západkový mechanismus
13 Kroužek osy
14 Kolo západkového mechanismu
15 Podložka západkového mechanismu
16 Pouzdro zvedáku
17 Pojistná matice
18 Šroub
19 Pouzdro zvedáku
20 Podložka
21 Pružina
22 Čep pružiny
23 Osa
24 Ozubené kolo
25 Sedlo osy
26 Podložka západkového mechanismu
5
3
7
6
2
4
1
3.1. POPIS ZAŘÍZENÍ
2.3. BEZPEČNÉ POUŽÍVÁNÍ ZAŘÍZENÍ
a) Zařízení udržujte v dobrém technickém stavu.
Kontrolujte před každou prací jeho celkový stav
i jednotlivé díly a ujistěte se, že je vše v dobrém stavu,
a uživateli tak při práci se zařízením nehrozí žádné
nebezpečí. V případě, že zjistíte poškození, nechte
zařízení opravit.
b) Udržujte zařízení mimo dosah dětí.
c) Opravu a údržbu zařízení by měly provádět
pouze kvalikované osoby za výhradního použití
originálních náhradních dílů. Zajistí to bezpečné
používání zařízení.
d) Pro zachování navržené mechanické integrity
zařízení neodstraňujte předem namontované kryty
nebo neuvolňujte šrouby.
e) Při přemisťování zařízení z místa skladování na místo
používání berte v úvahu pracovní zásady bezpečnosti
a ochrany zdraví v rámci přenášení břemena platné v
zemi, ve které se zařízení používá.
f) Nepřesouvejte, nepřenášejte a neotáčejte zařízení v
provozu.
g) Pravidelně čistěte zařízení, aby nedošlo k trvalému
usazovaní nečistot.
h) Zařízení není hračka. Čištění a údržbu nesmí provádět
děti bez dohledu dospělé osoby.
i) Nezasahujte do zařízení s cílem změnit jeho
parametry nebo konstrukci.
j) Udržujte zařízení mimo zdroje ohně a tepla.
k) Zařízení nepřetěžujte.
l) Používejte zařízení pouze na pevném, vodorovném
a bezprašném povrchu.
m) Před zvednutím musí být vozidlo zablokováno
– zařaďte pomocnou (parkovací) brzdu, nechte
manuální převodovku na prvním rychlostním stupni
nebo zpátečce (v automatu na „P”-park) a pod kola
umístěte speciální klíny, které zůstanou po zvednutí
v kontaktu se zemí. Zabráníte tak nekontrolovanému
pohybu vozidla a možnému pádu ze zvedáku.
n) Při výběru vhodných míst pro použití zvedáku
se řiďte doporučeními výrobce vozidla. To zajistí
bezpečný provoz a zabrání možnému poškození
podvozku.
o) Zvedák je určen pouze pro částečné zvedání – nikdy
nezvedejte celý objekt.
p) Zvedák lze také použít ve vodorovné poloze – pro
vytažení.
CZ
16
Rev. 18.03.2021
Pojem „zařízení“ nebo „výrobek“ v bezpečnostních pokynech
a návodu se vztahuje na HŘEBENOVÝ ZDVIHÁK.
2.1. BEZPEČNOST NA PRACOVIŠTI
a) Na pracovišti udržujte pořádek a mějte dobré
osvětlení. Nepořádek nebo špatné osvětlení mohou
vést k úrazům. Buďte předvídaví a sledujte, co se
během práce kolem vás děje. Při práci se zařízením
vždy zachovávejte zdravý rozum.
b) Budete-li mít pochybnosti, zda výrobek funguje
správně, nebo zjistíte poškození, kontaktujte servis
výrobce.
c) Výrobek může opravovat pouze servis výrobce.
Opravy neprovádějte sami!
d) Na pracovišti se nesmí zdržovat děti a nepovolané
osoby. (Nepozornost může způsobit ztrátu kontroly
nad zařízením.)
e) Je třeba pravidelně kontrolovat stav etiket s
bezpečnostními informacemi. V případě, že jsou
nečitelné, je třeba etikety vyměnit.)
f) Návod k obsluze uschovejte za účelem jeho
pozdějšího použití. V případě předánání zařízení
třetím osobám musí být spolu se zařízením předán
rovněž návod k obsluze.
g) Obalový materiál a drobné montážní prvky
uchovávejte na místě nedostupném pro děti.
h) Zařízení mějte v dostatečné vzdálenosti od dětí
a zvířat.
i) Pokud společně s tímto nástrojem používáte nějaké
další nářadí, pak musíte dodržovat také jeho návod k
použití.
2.2. OSOBNÍ BEZPEČNOST
a) Zařízení nepoužívejte, jste-li unaveni nebo pod
vlivem drog, alkoholu nebo léků, které významně
snižují schopnost zařízení ovládat.
b) S výrobkem mohou pracovat pouze fyzicky zdravé
osoby, které jsou schopné ho obsluhovat. Musejí být
náležitě proškolené z hlediska bezpečnosti a ochrany
zdraví při práci a seznámené s tímto návodem.
c) Při práci se zařízením buďte pozorní, řiďte se
zdravým rozumem. Chvilka nepozornosti při práci
může vést k vážnému úrazu.
d) Používejte osobní ochranné pomůcky vyžadované pro
práci se zařízením, specikované v bodě 1 vysvětlením
symbolů. Používání vhodných, atestovaných osobních
ochranných prostředků snižuje nebezpečí úrazu.
e) Nepřeceňujte své schopnosti. Udržujte stabilní
postoj a rovnováhu po celou dobu práce. To vám
umožní lépe ovládat zařízení v neočekávaných
situacích.
f) Nenoste volné oblečení nebo šperky. Vlasy, oděv
a rukavice udržujte v bezpečné vzdálenosti od
rotujících dílů. Volný oděv, šperky nebo dlouhé vlasy
mohou zachytit rotující díly.
g) Zařízení není hračka. Dohlížejte na děti, aby si
nehrály se zařízením.
h) Zařízení je určeno pouze pro zvedání a spouštění
– nenechávejte vozidlo dlouho zvednuté a nepracujte
pod vozidlem zvednutým tímto zařízením!
i) Zajistěte, aby po zvednutí vozidla, tj. při změně jeho
stabilní polohy, nevytekly žádné provozní kapaliny.
j) Nepřemisťujte zvedák se zavěšeným vozidlem!
3. ZÁSADY POUŽÍVÁNÍ
Zařízení se používá k částečnému zvedání nebo spouštění
vozidel.
Odpovědnost za veškeré škody vzniklé v důsledku
použití zařízení v rozporu s určením nese uživatel.
PAMATUJTE! Při práci se zařízením chraňte děti
a jiné nepovolané osoby.
POZNÁMKA! I když zařízení bylo navrženo tak, aby
bylo bezpečné, tedy má vhodné bezpečnostní prvky,
tak i přes použití dodatečné ochrany uživatelem při
práci se zařízením nadále existuje malé riziko úrazu
nebo poranění. Doporučuje se zachovat opatrnost
a zdravý rozum při jeho používání.
POZNÁMKA! Výkresy sestavení produktu jsou na
konci příručky na str. 31.
Bekijk gratis de handleiding van MSW -RPJ1500, stel vragen en lees de antwoorden op veelvoorkomende problemen, of gebruik onze assistent om sneller informatie in de handleiding te vinden of uitleg te krijgen over specifieke functies.
Productinformatie
| Merk | MSW |
| Model | -RPJ1500 |
| Categorie | Niet gecategoriseerd |
| Taal | Nederlands |
| Grootte | 3663 MB |







