MRCOOL MGM96SE070B3XA handleiding
Handleiding
Je bekijkt pagina 43 van 59

507768C05
Page 42 of 57
mrcool.com
external relay. See Figure 68 or Figure 69 for control board
conguration. This terminal is energized in the heating
mode when the combustion air inducer is operating.
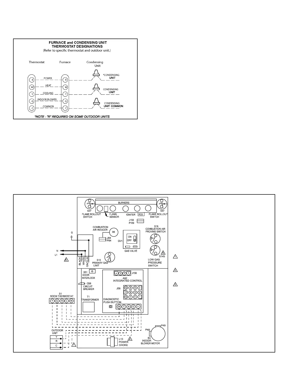
Figure 65.
One 24V “H” 1/4” spade terminal is provided on the furnace
control board. Any humidier rated up to 0.5 amp can be
connected to this terminal with the ground leg of the circuit
connected to ground or the “C” terminal. See Figure 68 or
Figure 69 for control board conguration. This terminal is
energized in the heating mode when the combustion air
inducer is operating.
Install the room thermostat according to the instructions
provided with the thermostat. See Figure 65 for thermostat
designations. If the furnace is being matched with a
heat pump, refer to the FM21 installation instruction or
appropriate dual fuel thermostat instructions.
Indoor Blower Speeds
1. When the thermostat is set to “FAN ON”, the indoor
blower will run continuously on the fan speed when
there is no cooling or heating demand. See Table 20
for allowable continuous circulation speeds.
2. When the furnace is running in the heating mode, the
indoor blower will run on the heating speed.
3. When there is a cooling demand, the indoor blower will
run on the cooling speed.
Generator Use - Voltage Requirements
• The furnace requires 120 volts ± 10% (Range: 108
volts to 132 volts)
• The furnace operates at 60 Hz ± 5% (Range: 57 Hz
to 63 Hz)
• The furnace integrated control requires both proper
polarity and proper ground. Both polarity and proper
grounding should be checked before attempting to
operate the furnace on either permanent or temporary
power.
• Generator should have a wave form distortion of less
than 5% THD (total harmonic distortion).
Figure 66. Typical Field Wiring Diagram
NOTE-
IF ANY WIRE IN THIS APPLIANCE IS REPLACED,
IT MUST BE REPLACED WITH WIRE OF LIKE
SIZE, RATING, INSULATION THICKNESS AND
TERMINATION.
WARNING-
ELECTRIC SHOCK HAZARD. CAN CAUSE
INJURY OR DEATH. UNIT MUST BE GROUNDED
IN ACCORDANCE WITH NATIONAL AND LOCAL
CODES.
‘R’ IS REQUIRED ON SOME OUTDOOR UNITS
L13 POWER CHOKE USED ON 3/4 AND 1 HP
ONLY
S145 IS USED WITH GAS VALVE WHEN APPLIED
IN LP GAS UNTIS
Bekijk gratis de handleiding van MRCOOL MGM96SE070B3XA, stel vragen en lees de antwoorden op veelvoorkomende problemen, of gebruik onze assistent om sneller informatie in de handleiding te vinden of uitleg te krijgen over specifieke functies.
Productinformatie
| Merk | MRCOOL |
| Model | MGM96SE070B3XA |
| Categorie | Niet gecategoriseerd |
| Taal | Nederlands |
| Grootte | 9972 MB |







