MRCOOL MGM96SE070B3XA handleiding
Handleiding
Je bekijkt pagina 32 van 59

507768C05
Page 31 of 57
mrcool.com
6. On eld supplied terminations, a minimum distance
between the end of the exhaust pipe and the end of
the intake pipe without a termination elbow is 8” and a
minimum distance of 6” with a termination elbow. See
Figure 39.
7. If intake and exhaust piping must be run up a side
wall to position above snow accumulation or other
obstructions, piping must be supported every 24” (610
mm) as shown in Figure 39. When exhaust and intake
piping must be run up an outside wall, the exhaust
piping must be terminated with pipe sized per Table 8.
The intake piping may be equipped with a 90° elbow
turndown. Using turndown will add 5 feet (1.5 m) to the
equivalent length of the pipe.
8. A multiple furnace installation may use a group of up to
four terminations assembled together horizontally, as
shown in Figure 41.
Figure 40.
Figure 41.
Figure 42.
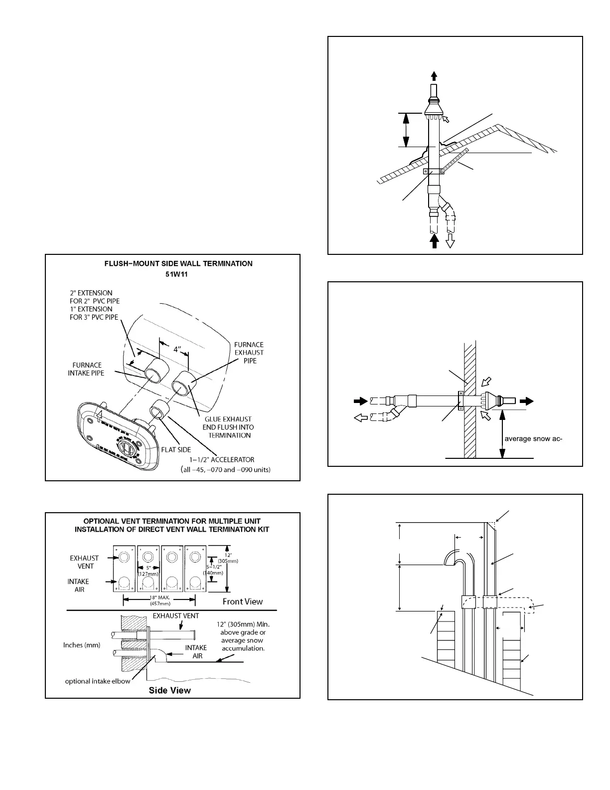
DIRECT VENT CONCENTRIC ROOFTOP TERMINATION
71M80, 69M29 or 60L46 (US)
44W92 or 44W93 (Canada)
Minimum
Above Average
Snow
Accumulation
SHEET METAL STRAP
(Clamp and sheet metal strap
must be field−installed to support
the weight of the termination kit.)
FLASHING
(Not Furnished)
CLAMP
INTAKE
12” (305mm)
FIELD-PROVIDED REDUCER
MAY BE REQUIRED TO
ADAPT DIFFERENT VENT
PIPE SIZE TO TERMINATION
Figure 43.
DIRECT VENT CONCENTRIC WALL TERMINATION
71M80, 69M29 or 60L46 (US)
44W92 or 44W93 (Canada)
12” (305mm) Min.
above grade or
cumulation.
INTAKE
AIR
EXHAUST
AIR
INTAKE
AIR
INTAKE
AIR
EXHAUST
AIR
OUTSIDE
WALL
GRADE
CLAMP
(Not Furnished)
FIELD-PROVIDED REDUCER
MAY BE REQUIRED TO
ADAPT DIFFERENT VENT
PIPE SIZE TO TERMINATION
Figure 44. Direct Vent Application Using Existing
Chimney
STRAIGHT-CUT OR
ANGLE-CUT IN DIRECTION
OF ROOF SLOPE *
EXHAUST VENT
1/2” (13mm)
WEATHERPROOF
INSULATION
SHOULDER OF FITTINGS
PROVIDE SUPPORT
OF PIPE ON TOP PLATE
ALTERNATE
INTAKE PIPE
INTAKE PIPE
INSULATION (optional)
EXTERIOR
PORTION OF
CHIMNEY
INSULATE
TO FORM
SEAL
SHEET
METAL TOP
PLATE
8” - 12”
(203mm - 305mm)
* SIZE TERMINATION
PIPE PER EXHAUST
PIPE TERMINATION
SIZE REDUCTION
TABLE
3” - 8”
(76mm -
203mm)
3” - 8”
(76mm -
203mm)
Minimum 12” (305mm)
above chimney top
plate or average snow
accumulation
Bekijk gratis de handleiding van MRCOOL MGM96SE070B3XA, stel vragen en lees de antwoorden op veelvoorkomende problemen, of gebruik onze assistent om sneller informatie in de handleiding te vinden of uitleg te krijgen over specifieke functies.
Productinformatie
| Merk | MRCOOL |
| Model | MGM96SE070B3XA |
| Categorie | Niet gecategoriseerd |
| Taal | Nederlands |
| Grootte | 9972 MB |







