MRCOOL MGD96SE090C4XA handleiding
Handleiding
Je bekijkt pagina 3 van 57

507769C05Page 2 of 55
mrcool.com
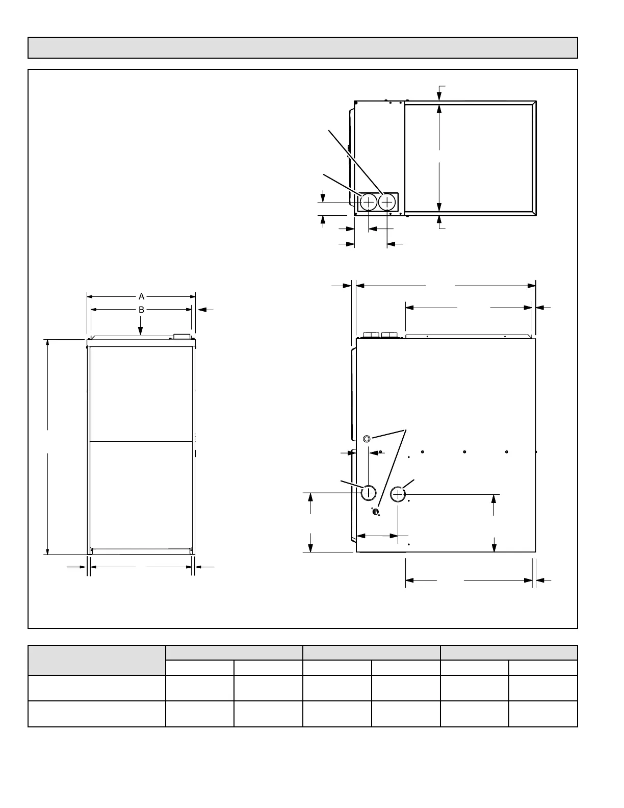
EXHAUST AIR
OUTLET
COMBUSTION
AIR INTAKE
2−1/16 (52)
GAS PIPING INLET
(Either Side)
ELECTRICAL INLET
(Either Side)
Return Air
Opening
WEIV EDIS
TOP VIEW
27−3/4
19−1/4
(489)
9−1/8 (232) Right
6−9/16 (167) Left
2 (51)
Either Side
3/4
(19)
B
Supply
Air
9/16
(14)
9/16
(14)
9/16
(14)
19−7/16
(494)
CONDENSATE
TRAP CONNECTION
5
(127)
6−1/2 (165)
Either Side
2−1/4
(57)
(Either Side)
1 (25)
Front Panel
(705)
AIR FLOW
33
(838)
C
3/4
(19)
3/4
(19)
FRONT VIEW
Supply
Air
9/16
(14)
9
(229)
Unit Dimensions
Capacity
A B C
in. mm in. mm in. mm
045-B3
070-B4
17-1/2 446 16-3/8 416 16 406
090-C4
110-C5
21 533 19-7/8 504 19-1/2 495
Bekijk gratis de handleiding van MRCOOL MGD96SE090C4XA, stel vragen en lees de antwoorden op veelvoorkomende problemen, of gebruik onze assistent om sneller informatie in de handleiding te vinden of uitleg te krijgen over specifieke functies.
Productinformatie
| Merk | MRCOOL |
| Model | MGD96SE090C4XA |
| Categorie | Niet gecategoriseerd |
| Taal | Nederlands |
| Grootte | 9521 MB |







