MRCOOL MGD95SE090C4XA handleiding

59 pagina's
PDF beschikbaar

Handleiding

Je bekijkt pagina 3 van 59
507276-05CPage 2 of 57 mrcool.com
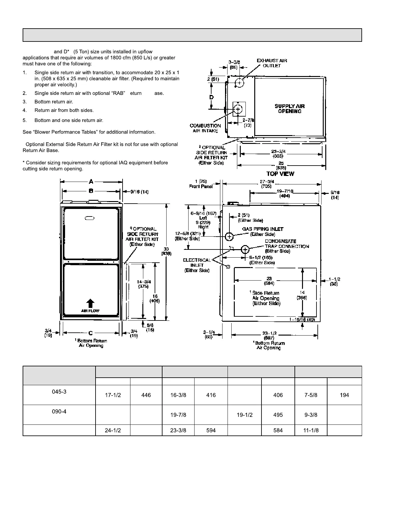
1
NOTE - C*5 5
R Air B
2
FRONT VIEW SIDE VIEW
Unit Dimensions
Model
A B C D
in. mm in. mm in. mm in. mm
070-3
16
110-5
21 533
505 238
135-5
622 23 283

Bekijk gratis de handleiding van MRCOOL MGD95SE090C4XA, stel vragen en lees de antwoorden op veelvoorkomende problemen, of gebruik onze assistent om sneller informatie in de handleiding te vinden of uitleg te krijgen over specifieke functies.

Productinformatie

MerkMRCOOL
ModelMGD95SE090C4XA
CategorieNiet gecategoriseerd
TaalNederlands
Grootte11530 MB