Mitsubishi MUY-GL15NA handleiding
Handleiding
Je bekijkt pagina 21 van 76

21
6
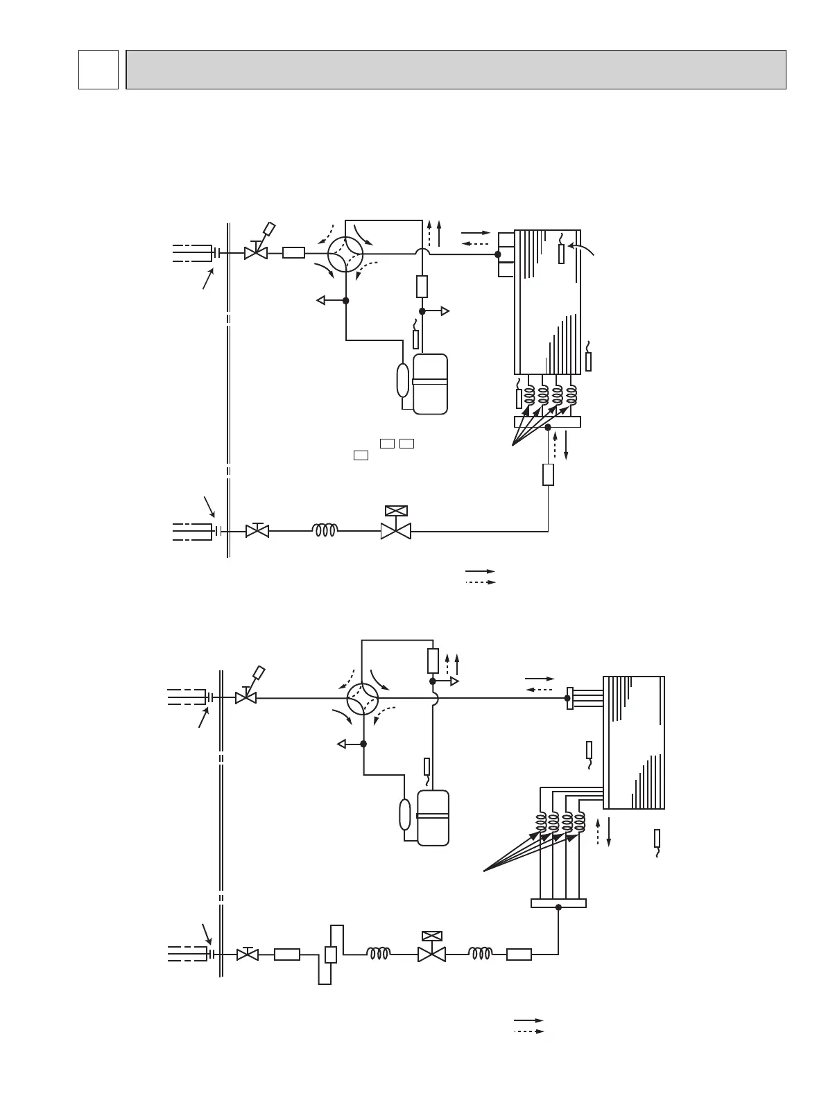
REFRIGERANT SYSTEM DIAGRAM
Unit: Inch (mm)
MUZ-GL18NA MUZ-GL18NAH MUY-GL18NA
Outdoor
heat
exchanger
Flared connection
Defrost
thermistor
RT61
(MUZ)
Discharge
temperature
thermistor
RT62
Flared connection
Stop valve
Capillary tube
O.D. 0.157×
I.D. 0.094×
3-15/16
(ø
4.0
×
ø
2.4
×
100)
Capillary tube
O.D. 0.157×
I.D. 0.094×7-7/8
(ø
4.0
×
ø
2.4
×
200)
Refrigerant flow in cooling
Compressor
4-way
valve
Refrigerant flow in heating (MUZ)
Refrigerant pipe
ø1/2
(
ø
12.7)
(with heat insulator)
Refrigerant pipe
ø1/4
(
ø
6.35)
(with heat insulator)
LEV
R.V. coil (MUZ)
heating ON
cooling OFF
Muffler
with #100 mesh strainer
Strainer
#100
Outdoor heat
exchanger
temperature
thermistor
RT68
Strainer
#100
Muffler
Capillary tube
O.D. 0.118×
I.D. 0.079× 7-7/8
(ø3.0×ø2.0×200(×4))
Stop valve
(with service port)
Service
port
Service port
Outdoor
heat
exchanger
Flared connection
Defrost
thermistor
RT61
(MUZ)
Discharge
temperature
thermistor
RT62
Flared connection
Stop valve
(with strainer)
Refrigerant flow in cooling
Compressor
4-way valve
Refrigerant flow in heating
(MUZ)
Refrigerant pipe ø1/4 (ø6.35)
(with heat insulator)
R.V. coil
(MUZ)
heating ON
cooling OFF
Strainer
#100
LEV
Ambient
temperature
thermistor
RT65
Muffler
Capillary tube
O.D. 0.118 ×
I.D. 0.079 × 9-7/16
(
ø3.0 × ø2.0 × 240
)
(MUZ-GL09NA/NAH-
U1 , U2
MUY-GL09NA- U2 )
Outdoor heat
exchanger
temperature
thermistor
RT68
Capillary tube
O.D. 0.118 ×
I.D. 0.079 × 8-9/32
(ø3.0 × ø2.0 × 210)
Service
port
Service
port
Refrigerant pipe ø3/8 (ø9.52) (GL09/12)
(with heat insulator)
ø1/2 (ø12.7) (GL15)
Stop valve
(with service port)
Capillary tube
O.D. 0.157 ×
I.D. 0.094 × 9-7/16
(
ø4.0 × ø2.4 × 240
)
(Other models
)
Muffler
MUZ-GL09NA MUZ-GL09NAH MUY-GL09NA
MUZ-GL12NA MUZ-GL12NAH MUY-GL12NA
MUZ-GL15NA MUZ-GL15NAH MUY-GL15NA
OBH733J
Bekijk gratis de handleiding van Mitsubishi MUY-GL15NA, stel vragen en lees de antwoorden op veelvoorkomende problemen, of gebruik onze assistent om sneller informatie in de handleiding te vinden of uitleg te krijgen over specifieke functies.
Productinformatie
Merk | Mitsubishi |
Model | MUY-GL15NA |
Categorie | Airco |
Taal | Nederlands |
Grootte | 15222 MB |