Mitsubishi MSY-GL18NA-U1 handleiding
Handleiding
Je bekijkt pagina 4 van 8

J
8J46.<42F>0G:
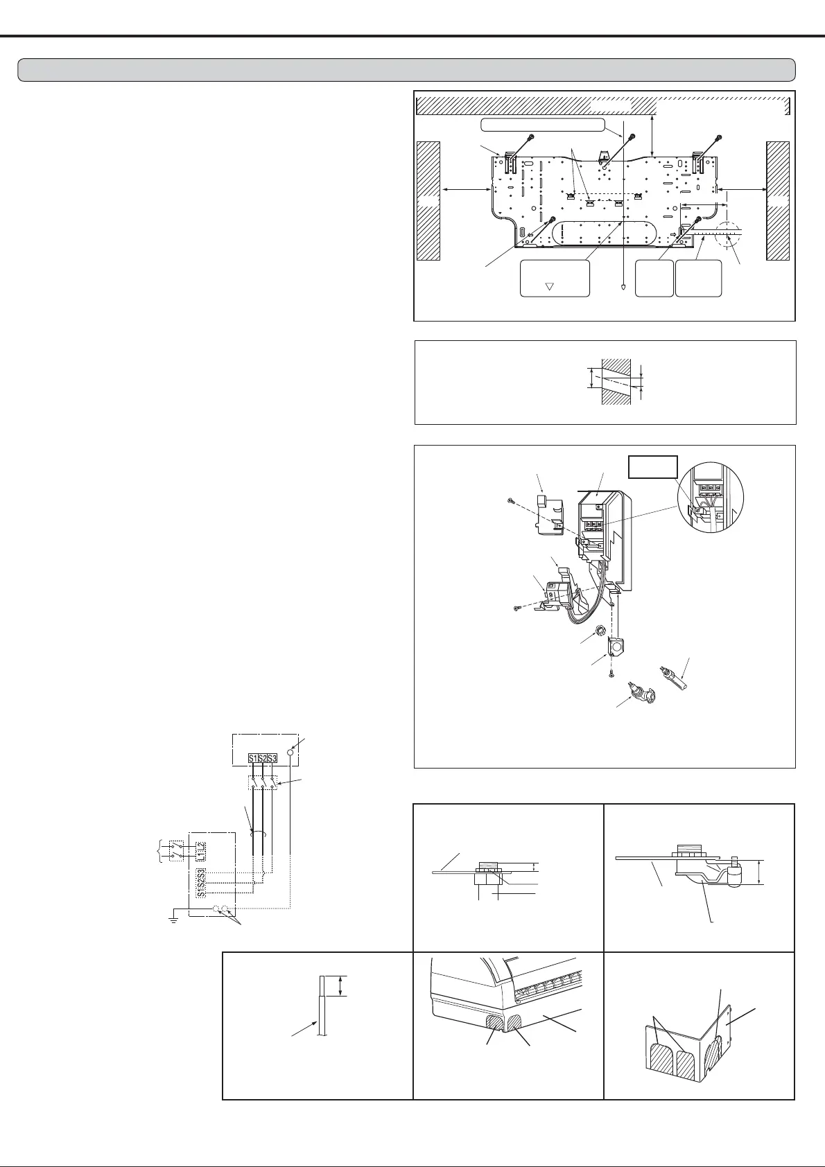
2-1. ATTACHING THE INSTALLATION PLATE
84:K?
8=:
%84:
;
84:-<42?41<42L-<42?4844C=0L44
C=2:84-61<>F>90G:
&86:
;
!
2-2. DRILLING
4:7
=:7M18-9:%2<1=.<1=89-:
1:&8:
2-3. CONNECTING WIRES FOR INDOOR UNIT
Note:
;6
4:$8$964:
=:"
1:$?
>:$
9: 8:< N8:
%<N
1<D840:84:#N
461<42810:8=:
2:"81:
?
-:"<8 :81:
6
?
D:
.:$
40: ?8>:
?89:$?
51<D
840:
N
5
2<1=6.<1=
896-:
O1
8-9:
&
?
5
#N
8:
#N
8:
5461<42
810:
?
$?
$?
4
=
1
> 9
?
$?
$?
5
&84:
"
M1
8-9:
>61<D
8440:
16-<D
8400:
=64<D89>:
964<D8410:
8:
;
8=:
E)
&
E
E
964<D8410:
INDOOR UNIT
%
208/230 V AC
1phase, 60 Hz
(
EE
7
E
OUTDOOR UNIT
(EE
(
"
=0D<=10@
4=
203K
%
4
Remark:
E
+
EE *6
%=
# #?
7
8:
;
(
2. INDOOR UNIT INSTALLATION
5
4.<1=
849:
Bekijk gratis de handleiding van Mitsubishi MSY-GL18NA-U1, stel vragen en lees de antwoorden op veelvoorkomende problemen, of gebruik onze assistent om sneller informatie in de handleiding te vinden of uitleg te krijgen over specifieke functies.
Productinformatie
Merk | Mitsubishi |
Model | MSY-GL18NA-U1 |
Categorie | Airco |
Taal | Nederlands |
Grootte | 1475 MB |