Milwaukee M18 HAMMERVAC 2712-DE handleiding
Handleiding
Je bekijkt pagina 5 van 9

8
9
• Utiliser les poignée(s) auxiliaire(s) si elles sont
fournie(s) avec l’outil. La perte de contrôle peut
causer des blessures.
• Tenir l'outil d'alimentation sur des surfaces ad-
hérantes isolées, lorsque vous effectuez une
opération où la xation peut être en contacte
avec des câbles électriques cachés. Les xa-
tions entrant en contacte avec un câble “sous ten-
sion” peuvent rendre les parties en métal du bloc
d'alimentation “sous tension” et provoquer un choc
électrique chez l'opérateur.
LIRE TOUTES LES
INSTRUCTIONS ET
LES CONSERVER
À DES FINS DE
RÉFÉRENCE
ULTÉRIEURE
DESCRIPTION FONCTIONNELLE
1. Bouton de
nettoyage de ltres
2. Buse
3. Brosse d'embout
4. Bouton de réglage de la buse
5. Bouton de réglage de l'outil et de l'embout
6. Contacts de la perceuse à percussion
7. Bouton de jauge de profondeur
8. Jauge de profondeur
9. Boutons du bac à poussière
10. Bac à poussière avec ltre
11. Bouton de libération de la perceuse à
percussion
2
4
3
6
7
8
10
9
11
1
5
PICTOGRAPHIE
Volts
Courant direct
SPECIFICATIONS
Diamètre maximal de mèche .............. 16 mm (5/8")
Température ambiante de fonctionnement
recommandée ........... -18°C
à
50°C (0°F
à
125°F)
No de Cat. de bacs à poussière ........... 49-90-2342
No de Cat. ................................................ 2712-DE
Utiliser uniquement avec les 2712-20
Perceuses à percussion SDS PLUS de
25 mm (1" ) FUEL™
Volts.............................................................. 18 CD
Type de batterie ...........................................M18™
Type de chargeur ........................................M18™
No de Cat. ................................................ 2715-DE
Utiliser uniquement avec les 2715-20 & 0757-20
Perceuses à percussion SDS PLUS de
28 mm (1-1/8" ) FUEL™
Volts................................................. 18 CD / 28 CD
Type de batterie ............................. M18™ / M28™
Type de chargeur .......................... M18™ / M28™
MONTAGE DE L'OUTIL
AVERTISSEMENT
An de réduire le risque
de blessure, toujours re-
tirer la batterie avant de retirer la boite à pous-
sière. Ne pas utiliser si la boite à poussière et/ou
les ltres ne sont pas en place.
Installer/retirer la boite à poussière et le
ltre HEPA
Pour retirer la boite à poussière:
1. Éteindre l'outil.
2. Retirer la batterie.
3. Appuyer sur les boutons du bac à poussière et le
tirer hors de l’outil HAMMERVAC™.
4. Vider la boite à poussière.
5. Si nécessaire, retirer le ltre HEPA de la boite à
poussière et le secouer pour le nettoyer. Ne pas
nettoyer avec de l'eau ni un compresseur d'air.
Après environ 1 500 trous ou si perte de succion,
retirer et remplacer le ltre HEPA (No de cat.
49-90-2306).
Pour installer la boite à poussière:
1. Insérer la boite à poussière dans le corps du
HAMMERVAC™.
2.Le loquet de la boite à poussière devrait se remettre
en place.
NOTE: Ne pas faire fonctionner le HAMMERVAC™
sans que la boite à poussière ni le ltre HEPA ne
soit en place. La boite à poussière ne doit pas être
installée sans ltre HEPA.
ATTENTION
Garder le ltre propre. L'efcacité
du dépoussiéreur dépend en
grande partie du ltre. Un ltre sale réduira le
ux d'air et l'efcacité du système de ltration.
Ne pas le nettoyer avec de l'eau ou un compres-
seur d'air. Retirez-le du dépoussiéreur et net-
toyer.
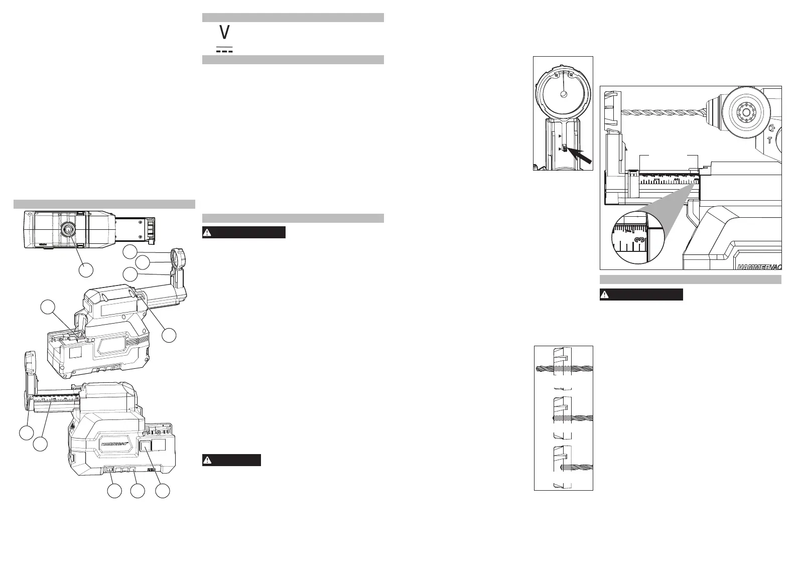
Réglage/Installation/Retrait de la buse
L’outil 2715-DE doit être réglé adéquatement pour
être utilisé avec les perceuses à percussion M18™
2715-20 ou M28™ 0757-20. Appuyer sur le bouton
de réglage de la buse et le faire glisser vers le cran
approprié.
M28
M18
No de Cat. 2715-DE
Remplacer la buse:
• Après avoir percé environ 1 500
trous;
• Lorsque la brosse de mèche
montre des signes d'usure;
• Lorsque la succion est réduite;
• Lorsque la poussière s'échappe
à travers la brosse de mèche
pendant l'utilisation.
Pour remplacer la buse (No de
cat. 49-90-2301), appuyer sur le
bouton de réglage de la buse et
la tirer de son ensemble inféri-
eure. Introduisez la nouvelle buse
dans la partie inférieure de l'assemblage jusqu'à ce
qu'elle s'enclenche dans l'emplacement.
Fixation de l’HAMMERVAC™ à la
perceuse à percussion
Ces dépoussiéreurs HAMMERVAC™ sont àutiliser
avec des perceuses à percussiondédiées. Reportez-
vous au tableau des spécications pour identier les
outils compatibles.
1. Retirez le bloc-piles de la perceuse à percussion.
2. Faites glisser la base de la perceuse à percussion
sur le dépoussiéreur.
3. Poussez les contacts à travers le couvercle pro-
tecteur de la perceuse à percussion. Le bouton de
libération de la perceuses’enclenchera en place.
Installer/retirer la mèche
Glissez la mèche à travers la brosse de mèche puis
l'installer sur l'outil en suivant les instructions du
fabricant. Pour de meilleurs résultats, utiliser une
mèche de 152 mm (6") ou moins.
Ajuster le HAMMERVAC™ à l'outil et la mèche
Pour une succion adéquate et un
Correcte
Incorrecte
Incorrecte
meilleur contrôle, placer
l'assemblage de la buse de telle
sorte que la mèche afeure avec
la face avant de la buse :
1. Appuyer et maintenir le bouton
d'ajustement de l'outil et de la
mèche.
2. Insérez l'assemblage de la buse
jusqu'à ce que la mèche afeu-
re la face avant de la buse.
3. Relâcher le bouton d'ajustement
de l'outil et de la mèche.
NOTE: Étirer complètement
le HAMMERVAC™ avant de
l'entreposer an de préserver la
durée de vie du ressort.
Régler la profondeur de perçage
1. Ajuster le HAMMERVAC™ à l'outil et à la mèche.
2. Appuyez et maintenir la bouton de profondeur de
jauge et faites glisser la jauge de profondeur à la
profondeur désirée. La profondeur de perçage est
la dernière mesure visible sur le dessus de l'outil.
An de vous assurer que le HAMMERVAC™ est
correctement xé sur l'outil, la mèche, et à la pro-
fondeur désirée, toujours effectuer un trou de test.
Profondeur
de perçage
MANIEMENT
AVERTISSEMENT
An de minimiser le risque
d’incendie ou blessure, ne
pas utiliser pour aspirer des matériaux combus-
tibles. Vider totalement le bac à poussière avant
de l’utiliser.
Pour réduire le risque de blessure, porter des
lunettes de sécurité ou des lunettes avec écrans
latéraux.
An de réduire le risque de blessure, porter un
masque anti-poussière ou utiliser une solution
d’extraction de poussière conforme aux normes
OSHA.
Fonctionnement approprié
1. Vider la boite à poussière.
2. Ajuster l’ensemble de la buse au type correct
d’outil M18™ / M28™ (2715-DE uniquement)
3. Retirer le bloc-piles de l’outil.
4. Insérer le HAMMERVAC™ dans l’outil et ajuster
l’outil et l’embout. (Consulter Fixation de
l’HAMMERVAC à l’outil et l'embout).
5. Régler la profondeur de perçage.
6. Installer la batterie.
7. Commencer l'utilisation selon les instructions du
fabricant. Faire fonctionner l’outil conformément
aux instructions du fabricant. Tirer la gâchette
pour mettre l’outil HAMMERVAC™ en marche.
Relâcher la gâchette pour arrêter l’outil. L’outil
HAMMERVAC™ continuera à fonctionner pendant
3 à 5 secondes pour capturer toute la poussière
dans le bac.
REMARQUE : Pour son utilisation optimale, après
tous les cinq trous percés, appuyer sur le bouton de
nettoyage de ltres jusqu’à ce qu’il clique.
Bekijk gratis de handleiding van Milwaukee M18 HAMMERVAC 2712-DE, stel vragen en lees de antwoorden op veelvoorkomende problemen, of gebruik onze assistent om sneller informatie in de handleiding te vinden of uitleg te krijgen over specifieke functies.
Productinformatie
| Merk | Milwaukee |
| Model | M18 HAMMERVAC 2712-DE |
| Categorie | Niet gecategoriseerd |
| Taal | Nederlands |
| Grootte | 1898 MB |







