Miele WSF664 WCS handleiding
Handleiding
Je bekijkt pagina 66 van 84

Installatie
*INSTALLATION*
66
Onder een werkblad plaatsen
Gevaar voor elektrische schok
door blootliggende kabel
Als het bovenblad gedemonteerd is,
kunt u in aanraking komen met gelei-
dende onderdelen.
Demonteer het bovenblad van de
wasmachine niet.
Deze wasmachine kan helemaal (met
bovenblad) onder een werkblad worden
geplaatst, als het werkblad tenminste
hoog genoeg is.
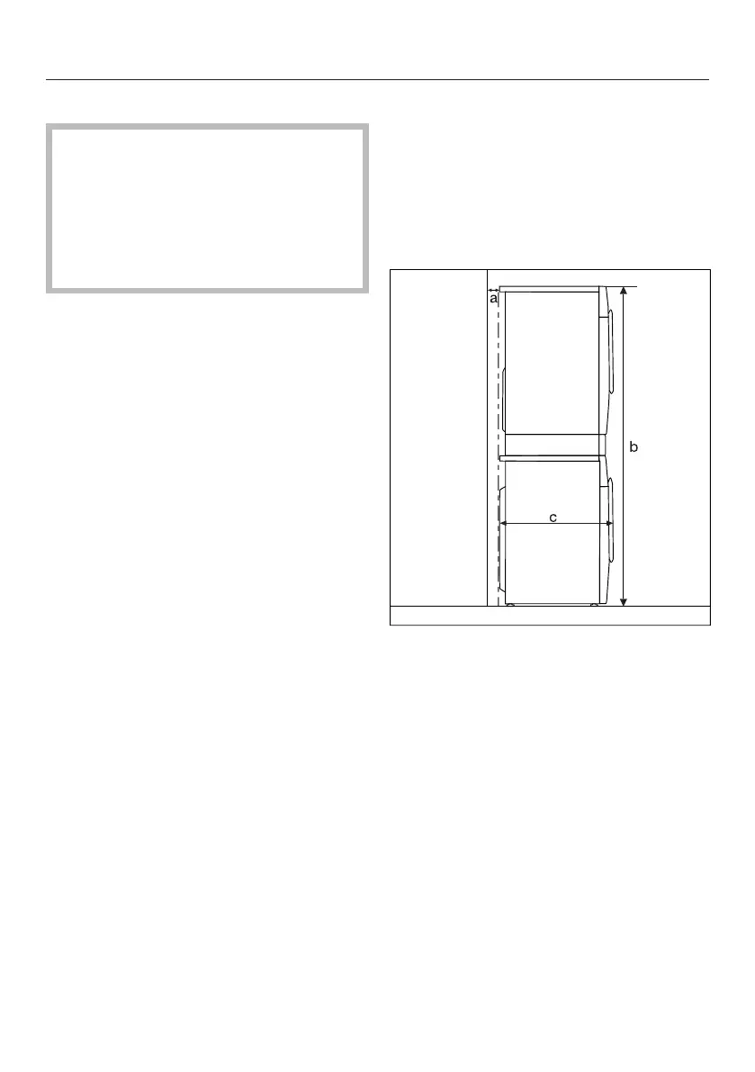
Was-droogzuil
Op de wasmachine kan een Miele dro-
ger worden geplaatst. Hiervoor is een
tussenstuk* (WTV) nodig.
Alle met * aangeduide onderdelen zijn
verkrijgbaar bij Miele Nederland B.V.
Let op:
a = minimaal 2cm
b = WTV zonder lade: 172cm
WTV met lade: 181cm
c = 65cm
Bekijk gratis de handleiding van Miele WSF664 WCS, stel vragen en lees de antwoorden op veelvoorkomende problemen, of gebruik onze assistent om sneller informatie in de handleiding te vinden of uitleg te krijgen over specifieke functies.
Productinformatie
| Merk | Miele |
| Model | WSF664 WCS |
| Categorie | Wasmachine |
| Taal | Nederlands |
| Grootte | 9574 MB |
Caratteristiche Prodotto
| Apparaatplaatsing | Vrijstaand |
| Soort bediening | Rotary, Touch |
| Kleur van het product | Wit |
| Deurscharnieren | Rechts |
| Ingebouwd display | Ja |







