Miele WEJ895 WPS handleiding
Handleiding
Je bekijkt pagina 75 van 96

Installatie
*INSTALLATION*
75
Onder een werkblad plaatsen
Gevaar voor elektrische schok
door blootliggende kabel
Als het bovenblad gedemonteerd is,
kunt u in aanraking komen met gelei-
dende onderdelen.
De onderbouwset* moet door een
vakman / vakvrouw worden gemon-
teerd en gedemonteerd.
- Een onderbouwset* is noodzakelijk.
Bij de onderbouwset* wordt een af-
dekplaat geleverd die dient als ver-
vanging van het bovenblad van het ap-
paraat. Deze plaat is omwille van de
elektrische veiligheid absoluut vereist.
- Watertoevoer, waterafvoer en elek-
trische aansluiting dienen in de buurt
van de automaat geïnstalleerd te zijn
en men moet er gemakkelijk bij kun-
nen.
Bij de onderbouwset wordt een monta-
gehandleiding geleverd.
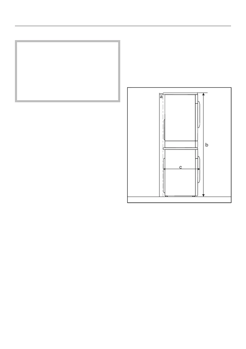
Was-droogzuil
Op de wasmachine kan een Miele dro-
ger worden geplaatst. Hiervoor is een
tussenstuk* (WTV) nodig.
Alle met * aangeduide onderdelen zijn
verkrijgbaar bij Miele Nederland B.V.
Let op het volgende:
a = Minstens 2cm
b = WTV zonder lade : 172cm
WTV met lade: 181cm
c = 64cm
Bekijk gratis de handleiding van Miele WEJ895 WPS, stel vragen en lees de antwoorden op veelvoorkomende problemen, of gebruik onze assistent om sneller informatie in de handleiding te vinden of uitleg te krijgen over specifieke functies.
Productinformatie
| Merk | Miele |
| Model | WEJ895 WPS |
| Categorie | Wasmachine |
| Taal | Nederlands |
| Grootte | 11488 MB |







