Midea MTA1-96CQN1 handleiding

156 pagina's
PDF beschikbaar

Handleiding

Je bekijkt pagina 17 van 156
MCAC-UTSM-201501 Midea R410A T3 Top-discharge Split Type Series 50Hz
16
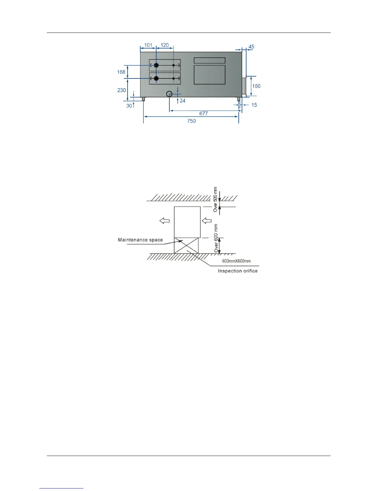
Pipe side view
4. Service Space
Top view
Downloaded from www.Manualslib.com manuals search engine

Bekijk gratis de handleiding van Midea MTA1-96CQN1, stel vragen en lees de antwoorden op veelvoorkomende problemen, of gebruik onze assistent om sneller informatie in de handleiding te vinden of uitleg te krijgen over specifieke functies.

Productinformatie

MerkMidea
ModelMTA1-96CQN1
CategorieAirco
TaalNederlands
Grootte30967 MB