Handleiding
Je bekijkt pagina 10 van 80

DE-10
▲
Eingebaute Geräte
1. Dieses Gerät ist nur zum vollständigen Einbau in eine Küche
bestimmt.
2. Dieses Gerät ist nicht für die Verwendung als Tischgerät oder in
einem Schrank vorgesehen.
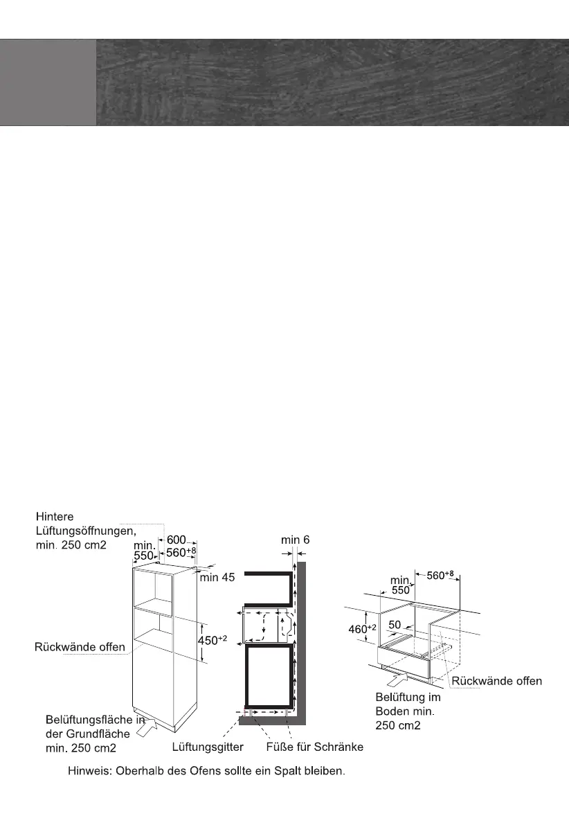
3. Der Einbauschrank darf keine Rückwand hinter dem Gerät haben.
4. Zwischen der Wand und dem Boden oder der Rückwand des
darüber befindlichen Geräts muss ein Abstand von mindestens 45
mm eingehalten werden.
5. Der Einbauschrank muss an der Vorderseite eine Lüftungsöffnung
von 250 cm
2
haben. Um dies zu erreichen, schneiden Sie die
Bodenplatte zurück oder bringen Sie ein Lüftungsgitter an.
6. Lüftungsschlitze und -öffnungen dürfen nicht verdeckt werden.
7. Der sichere Betrieb dieses Geräts kann nur gewährleistet werden,
wenn es gemäß dieser Installationsanleitung installiert wurde.
8. Der Installateur haftet für Schäden, die durch unsachgemäßen
Einbau entstehen.
9. Die Geräte, in die das Gerät eingebaut wird, müssen bis 90 °C
hitzebeständig sein.
10. Einbauhöhe nicht unter 850 mm.
▲
Einbaumaße
EINRICHTUNG
04
Bekijk gratis de handleiding van Midea MEK45KIX, stel vragen en lees de antwoorden op veelvoorkomende problemen, of gebruik onze assistent om sneller informatie in de handleiding te vinden of uitleg te krijgen over specifieke functies.
Productinformatie
Merk | Midea |
Model | MEK45KIX |
Categorie | Oven |
Taal | Nederlands |
Grootte | 11891 MB |