Middle Atlantic SRSR-2-20 handleiding
Handleiding
Je bekijkt pagina 6 van 12

ASSEMBLY (CONTINUED)
Page 6
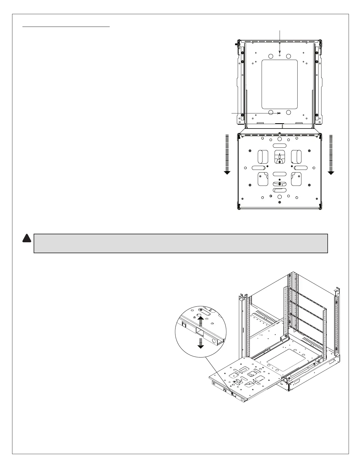
FIGURE H
CAUTION! Failure to install all required hardware may result in damage to the equipment
and possible injury to the user.
!
18) Place rack frame on sliding carriage using
provided handles. (FIGURE G)
NOTE: Mounting studs on underside
of rack frame must be inserted into
mounting holes in sliding carriage.
19) Re-install the rack frame to the sliding
carriage using four (4) wing nuts.
(FIGURE G)
20) Depress the lockout lever on the front
of the sliding carriage and push the rack
frame into the millwork. (FIGURE I)
21) Retract the sliding carriage on the
SRSR base. (FIGURE G)
22) Replace two (2) #10-32 rack screws (from step #1)
to secure locking trim panel to SRSR base. (FIGURE G)
12) Extend sliding carriage forward to reveal rear
preliminary mounting hole in SRSR base.
(FIGURE H)
13) Insert fastener (not supplied) through rear
preliminary mounting hole to secure rear of
SRSR base to millwork. (FIGURE H)
14) Extend sliding carriage further forward to
reveal front preliminary mounting hole in
SRSR base. (FIGURE H)
15) Insert fastener (not supplied) through front
preliminary mounting hole to secure front of
SRSR base to millwork. (FIGURE H)
16) Verify setback clearances and complete
attachment of SRSR base to millwork using
mounting points shown on (FIGURE J) on page 7.
17) Verify setback clearances and complete
attachment of SRSR base to millwork using
mounting points shown on (FIGURE J) on page 7.
FIGURE I
REAR PRELIMINARY MOUNTING HOLE
LOCKOUT LEVER
FRONT
PRELIMINARY
MOUNTING
HOLE
Bekijk gratis de handleiding van Middle Atlantic SRSR-2-20, stel vragen en lees de antwoorden op veelvoorkomende problemen, of gebruik onze assistent om sneller informatie in de handleiding te vinden of uitleg te krijgen over specifieke functies.
Productinformatie
| Merk | Middle Atlantic |
| Model | SRSR-2-20 |
| Categorie | Niet gecategoriseerd |
| Taal | Nederlands |
| Grootte | 2069 MB |
Caratteristiche Prodotto
| Kleur van het product | Zwart |
| Breedte | 489 mm |
| Diepte | 487 mm |
| Hoogte | 964 mm |
| Materiaal behuizing | Staal |







