Middle Atlantic AXS-19 handleiding
Handleiding
Je bekijkt pagina 5 van 16

Page 5
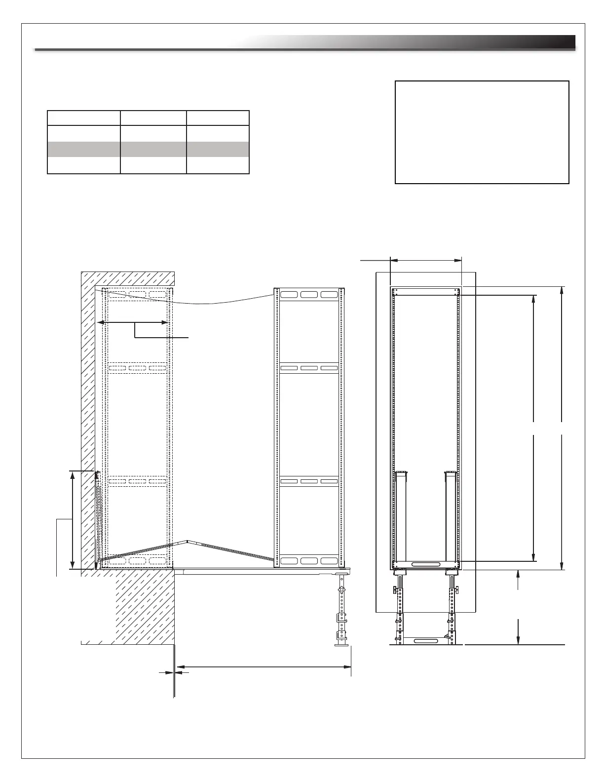
1) Rough-in millwork must be plumb, square and completed
before beginning assembly. Minimum millwork mounting
dimensions (without gasket and guide kit) are as follows:
DID YOU KNOW?
Optional gasket (part # BG-17)
fills gap between rack and millwork.
Optional gasket and guide kit helps
keep rack centered and protects
millwork. Order part # AXS-GG16,
AXS-GG20 or AXS-GG26 for 16", 20"
or 26" depth racks, respectively.
19" min.
(SAX & SSAX)
22-1/2" min.
(AXS & AX-SX)
28-1/2" min.
(AXS-xx-26)
"A" "B"
3" minimum
40" maximum
17" for use with
AX-SX & SSAX
28" for use with
AXS, SAX &
AXS-xx-26
1/2" min.
set back
2-1/2" max.
TRACK25 - 24-1/2" max.
TRACK50 - 49-1/2" max.
NOTE: Total rack height including rough-in pan is the usable rack height ("A") plus 4-9/16."
1) Construct rough opening and base.
2) Assemble frame.
3) Install cable carriers / rough-in pan.
4) Install service stand.
5) Attach frame to tracks and cable
carriers.
6) Assemble leash.
7) Tie cable to carriers.
8) Secure rack in millwork.
ROUGH-IN / SITE PREPARATION
MODEL
DEPTH
22-1/2”
22-1/2”
28-1/2”
WIDTH
19-1/4”
19-1/4”
19-1/4”
SAX / SSAX*
AXS / AX-SX*
AXS-xx-26*
*Setback is 1/2” for all models
NOTE: When using optional gasket and guide kit, minimum rough millwork opening width is 19-5/8".
Bekijk gratis de handleiding van Middle Atlantic AXS-19, stel vragen en lees de antwoorden op veelvoorkomende problemen, of gebruik onze assistent om sneller informatie in de handleiding te vinden of uitleg te krijgen over specifieke functies.
Productinformatie
| Merk | Middle Atlantic |
| Model | AXS-19 |
| Categorie | Niet gecategoriseerd |
| Taal | Nederlands |
| Grootte | 2395 MB |







