Mestic BA-2600 handleiding
Handleiding
Je bekijkt pagina 151 van 162

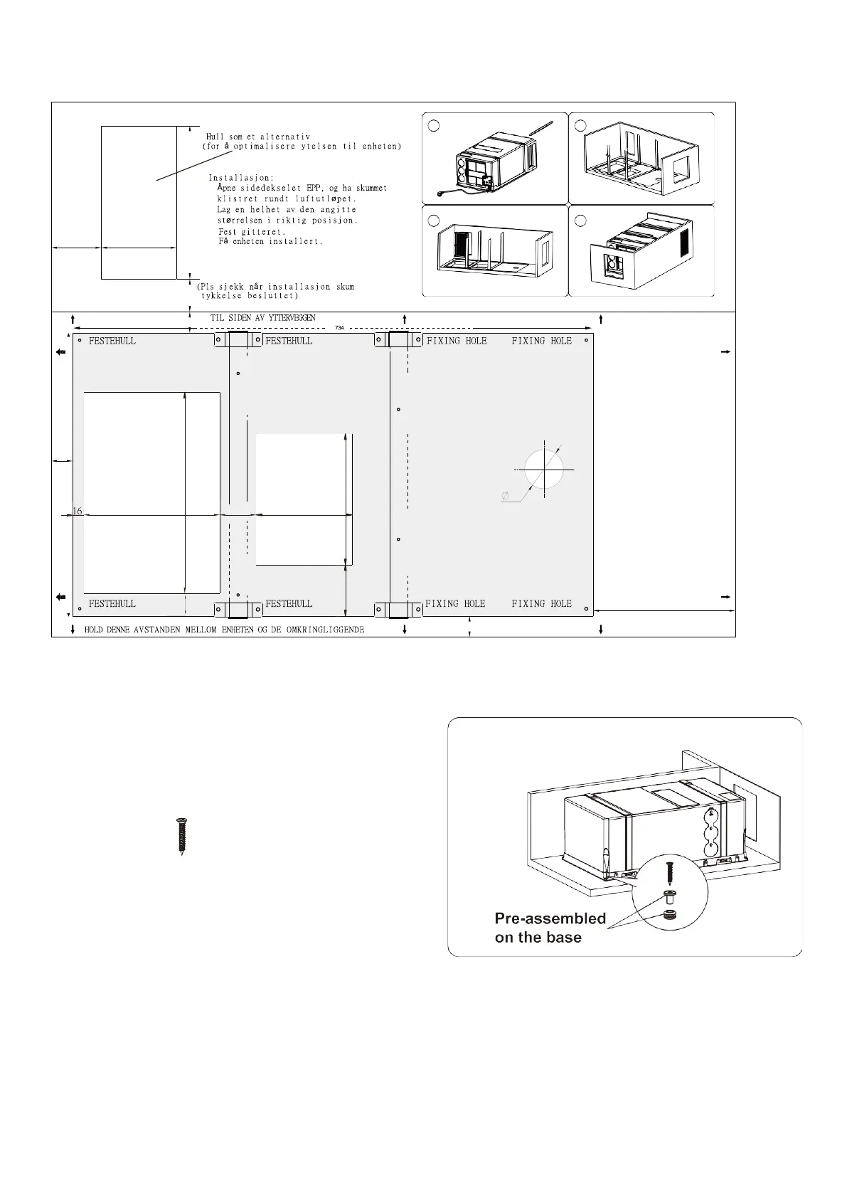
Deler som følger med for å sikre klimaanlegget
Festemetode 1:
Enheten festes med skruer i hvert av de fire hjørnene.
( system 1 )
( system 2 )
( system 2 ) ( system 1 )
AVLØPSHULL
30
INNLØ
OUTLET
55
191
51 .
135 .
FLOOR CUTS MAP
( system 1 )
( system 2 )
( system 2 ) ( system 1 )
200
106
70 .
4
3
1.
2.
3.
4.
2
1
Bekijk gratis de handleiding van Mestic BA-2600, stel vragen en lees de antwoorden op veelvoorkomende problemen, of gebruik onze assistent om sneller informatie in de handleiding te vinden of uitleg te krijgen over specifieke functies.
Productinformatie
| Merk | Mestic |
| Model | BA-2600 |
| Categorie | Niet gecategoriseerd |
| Taal | Nederlands |
| Grootte | 32132 MB |




