MBM LTD821D handleiding
Handleiding
Je bekijkt pagina 38 van 150

MANUALE DI ISTRUZIONE PER LAVASTOVIGLIE
MDIISY31-(r01) Pagina 11 di 21
IT
• Per il lavaggio dell’acciaio inossidabile è vietato nel modo più assoluto l’uso di trucioli, pagliette o
spazzole d’acciaio
• Per la protezione dell’ambiente, consigliamo di non usare prodotti corrosivi o inquinanti e di non
superare le dosi consigliate.
• Il personale addetto alla manipolazione delle stoviglie, una volta effettuato il lavaggio, deve
rigorosamente rispettare le norme igieniche di legge.
• Per raccogliere oggetti caduti all’interno della macchina, arrestare il movimento e spegnere
completamente la macchina.
• Non avvicinarsi al movimento del traino con ciondoli, braccialetti o maniche di camicie
esageratamente grandi onde evitare pericolo di impigliamento e/o trascinamento.
• Non utilizzare la macchina come piano d’appoggio per qualsiasi oggetto e/o strumento.
• Spegnere sempre la macchina quando non viene adoperata, mediante l’interruttore onnipolare a
muro.
• Chiudere l’alimentazione idrica ogni volta che la macchina non viene adoperata.
• Spegnere immediatamente la macchina qualora si verificassero perdite d’acqua.
• Ricordiamo che la macchina non deve essere messa mai in funzione senza le apposite tende di
protezione: in ingresso, uscita e in posizioni intermedie.
• E’ vietato togliere il cesto dalla macchina prima che questo sia uscito completamente dalla
macchina.
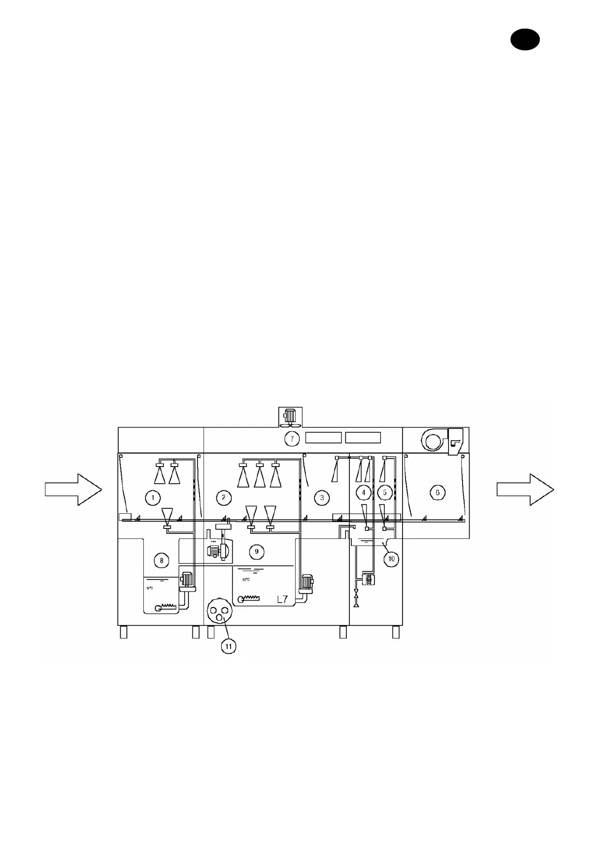
Cap 5 DESCRIZIONE DELLA MACCHINA
Schema della macchina
5.1
1 Camera pre-lavaggio 5 Camera risciacquo finale 9 Vasca lavaggio
2 Camera lavaggio 6 Camera asciugatura 10 Vasca risciacquo
3 Camera pre-risciacquo 7 Zona estrazione e recuperatore vapori 11 Boiler
4 Camera primo risciacquo 8 Vasca pre-lavaggio
Le macchine a cesto trainato vengono costruite con materiali di alta qualità, acciaio inossidabile AISI
304 per la costruzione delle vasche di lavaggio ed acciaio inossidabile per le restanti parti.
• Nella sezione 1 di prelavaggio, viene effettuata una prima sgrossatura delle stoviglie.
•
Nella sezione 2 di lavaggio, viene effettuato il lavaggio delle stoviglie.
Bekijk gratis de handleiding van MBM LTD821D, stel vragen en lees de antwoorden op veelvoorkomende problemen, of gebruik onze assistent om sneller informatie in de handleiding te vinden of uitleg te krijgen over specifieke functies.
Productinformatie
| Merk | MBM |
| Model | LTD821D |
| Categorie | Wasmachine |
| Taal | Nederlands |
| Grootte | 21127 MB |





