Handleiding
Je bekijkt pagina 6 van 64

6
Parts Needed:
� Your refrigerator dealer has a kit available with a 1/4"
(6.35 mm) saddle-type shut-off valve, a union, and copper
tubing.
� Or you can purchase 1/4" (6.35 mm) copper tubing with
shut-off valve and a 1/4" (6.35 mm) compression fitting
(coupling).
� Depending on water line connections, you may also need a
1/4" (6.35 mm) nut and 1/4" (6.35 mm) ferrule.
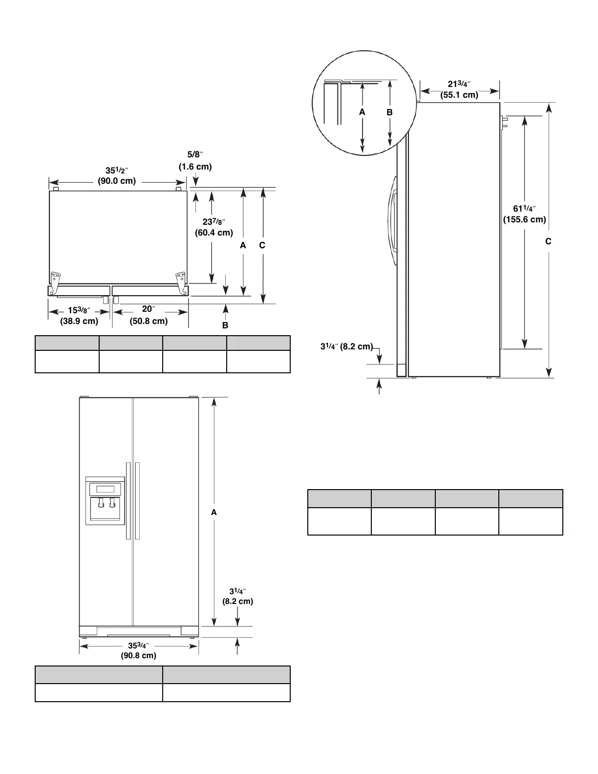
Product Dimensions – Top View
35
1
/
2
”
(90.0 cm)
23
7
/
8
”
(60.4 cm)
15
3
/
8
”
(38.9 cm)
A
B
C
5/8
”
(1.6 cm)
20
”
(50.8 cm)
Door Style Depth A Depth B Depth C
Curved
28
5
/
8
"
(72.7 cm)
2
5
/
8
" (6.7 cm)
31
1
/
8
"
(79.1 cm)
Product Dimensions – Front View
35
3
/
4
”
(90.8 cm)
3
1
/
4
”
(8.2 cm)
A
Model Size Height A
69" 65
3
/
4
" (167.0 cm)
Product Dimensions – Side View
21
3
/
4
”
(55.1 cm)
61
1
/
4
”
(155.6 cm)
3
1
/
4
”
(8.2 cm)
C
A
B
� Height dimensions are shown with the leveling legs extended
to the minimum height of 1/4" (6.35 mm) below the refrigerator.
NOTE: When leveling legs are fully extended to 1" (25 mm)
below the refrigerator, add 3/4" (19 mm) to the height
dimensions.
� The power cord is 61
1
/
4
" (155.6 cm) long.
� The water line attached to the back of the refrigerator is 78"
(198.1 cm) long.
Model Size Height A Height B Height C
69" 68
7
/
8
"
(174.9 cm)
68
7
/
8
"
(174.9 cm)
68
1
/
2
"
(174.0 cm)
Bekijk gratis de handleiding van Maytag MRSC6636RZ, stel vragen en lees de antwoorden op veelvoorkomende problemen, of gebruik onze assistent om sneller informatie in de handleiding te vinden of uitleg te krijgen over specifieke functies.
Productinformatie
Merk | Maytag |
Model | MRSC6636RZ |
Categorie | Koelkast |
Taal | Nederlands |
Grootte | 11402 MB |