Master-Bilt QS2 handleiding
Handleiding
Je bekijkt pagina 15 van 104

15
8/22 Rev. R 132617 ©2022 Refrigerated Solutions Group. All rights reserved.
5
WALK-IN INSTALLATION
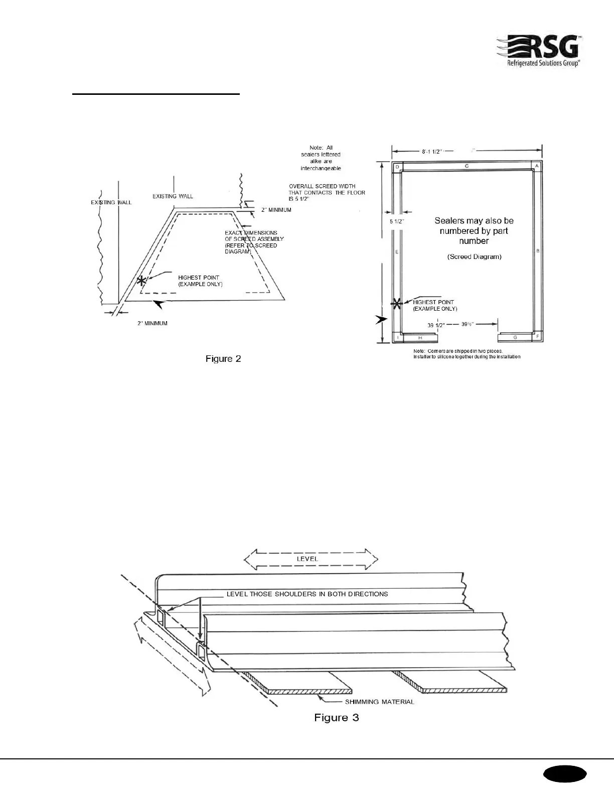
After the first screed section is positioned, it must be LEVELED PERFECTLY not only over its length but, across
its width, as well. To achieve this, shimming material will most likely be required. Vinyl floor tile is ideally suited for
this purpose. However, other materials that are resistant to rotting or compression are acceptable. IMPORTANT!
EVERY SECTION OF SCREED MUST BE SUPPORTED AT LEAST EVERY 12’’ BY EITHER THE BUILDING
FLOOR OR BY SHIMMING (Figure 3).
Assuming that the first screed section has been perfectly leveled, refer to the screed diagram and select an
adjoining screed section and level it perfectly in both directions, shimming wherever necessary. Continue leveling
the remainder of the screed sections until the entire assembly is in position. Check the assembly to make sure that
the outer edges are located exactly on the drawn outline on the building floor.
Bekijk gratis de handleiding van Master-Bilt QS2, stel vragen en lees de antwoorden op veelvoorkomende problemen, of gebruik onze assistent om sneller informatie in de handleiding te vinden of uitleg te krijgen over specifieke functies.
Productinformatie
| Merk | Master-Bilt |
| Model | QS2 |
| Categorie | Koelkast |
| Taal | Nederlands |
| Grootte | 40845 MB |