Handleiding
Je bekijkt pagina 7 van 57

Part Number 20000095 Rev J 5/15 7
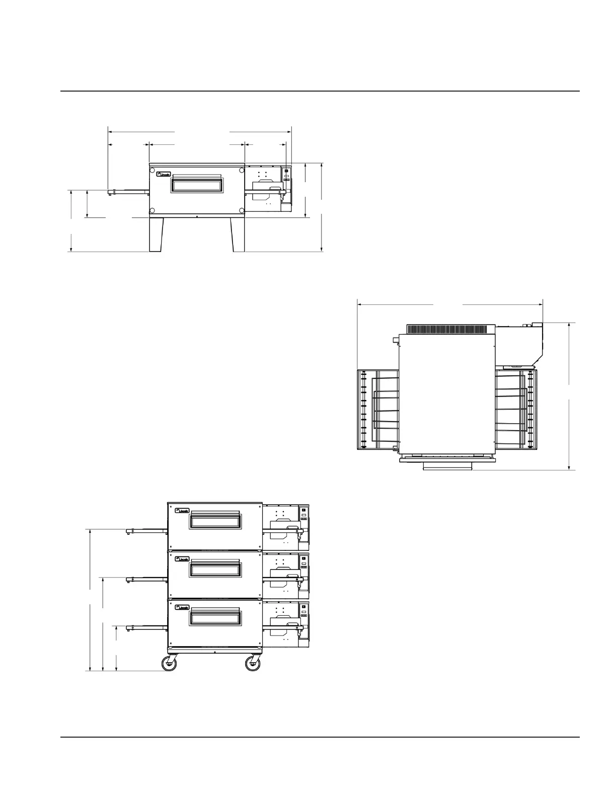
Exterior Dimensions – 3240
77.61" (1971 mm)
40.41" (1026 mm)
17.4"
(442 mm)
23.13"
(588 mm)
37.49"
(952 mm)
11.66"
(296 mm)
26.02"
(661 mm)
17.44"
(443 mm)
77.75"
(1975 mm)
61.86"
(1571 mm)
60.34"
(1533 mm)
39.78"
(1010 mm)
19.22"
(488 mm)
Section 2
Installation
Bekijk gratis de handleiding van Lincoln Impinger FASTBAKE, stel vragen en lees de antwoorden op veelvoorkomende problemen, of gebruik onze assistent om sneller informatie in de handleiding te vinden of uitleg te krijgen over specifieke functies.
Productinformatie
| Merk | Lincoln |
| Model | Impinger FASTBAKE |
| Categorie | Oven |
| Taal | Nederlands |
| Grootte | 6285 MB |
