Handleiding
Je bekijkt pagina 19 van 29

3. TECHNICAL DATA SHEET
二
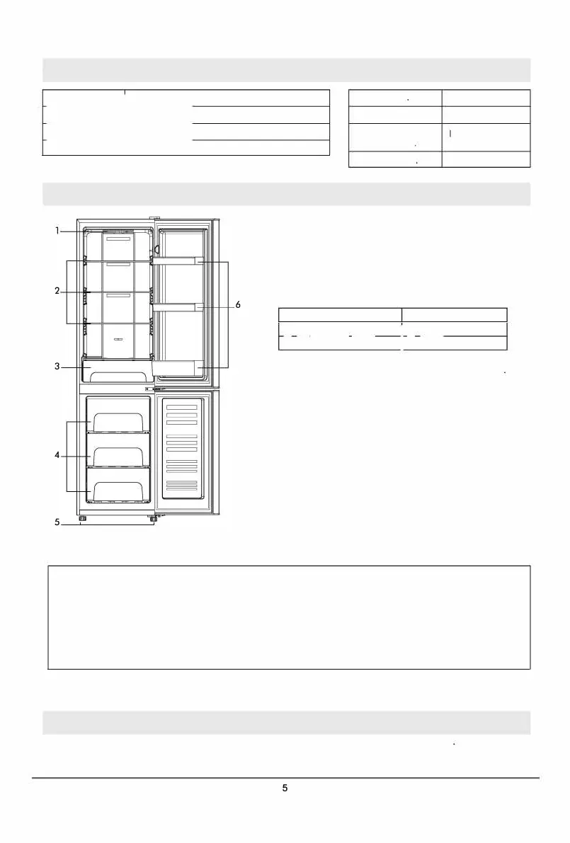
4. STRUCTURE ILLUSTRATION
2
3
4
5
6
HE
E
HELF
L
5. TRANSPORT AND HANDING
5
Bekijk gratis de handleiding van Linarie Yenne LHCO230, stel vragen en lees de antwoorden op veelvoorkomende problemen, of gebruik onze assistent om sneller informatie in de handleiding te vinden of uitleg te krijgen over specifieke functies.
Productinformatie
| Merk | Linarie |
| Model | Yenne LHCO230 |
| Categorie | Koelkast |
| Taal | Nederlands |
| Grootte | 6301 MB |







