Handleiding
Je bekijkt pagina 3 van 14

substances and products covered by the
2007/47/EC Medical Devices Directive. Misuse
of the appliance can result in the stored prod-
ucts suffering harm or perishing. Furthermore,
the appliance is not suitable for operation in
potentially explosive atmospheres.
The appliance is set to operate within specific
ambient temperature limits according to its
climate rating. The correct climate rating for
your appliance is indicated on the type plate.
Note
u
Compliance with the ambient temperatures
indicated is required, otherwise the cooling
performance is reduced.
Climate
rating
for ambient temperatures of
SN 10 °C to 32 °C
N 16 °C to 32 °C
ST 16 °C to 38 °C
T 16 °C to 43 °C
1.3 Conformity
The refrigerant circuit is tested for leakage. The appliance
complies with the relevant safety regulations and EC Directives
2006/95/EC, 2004/108/EC, 2009/125/EC and 2010/30/EU.
Note for test institutions:
Tests are to be carried out according to the applicable
standards and guidelines.
Preparation and testing of the appliances must be carried
out taking the manufacturer's loading plans and the
notes in the operating manual into account.
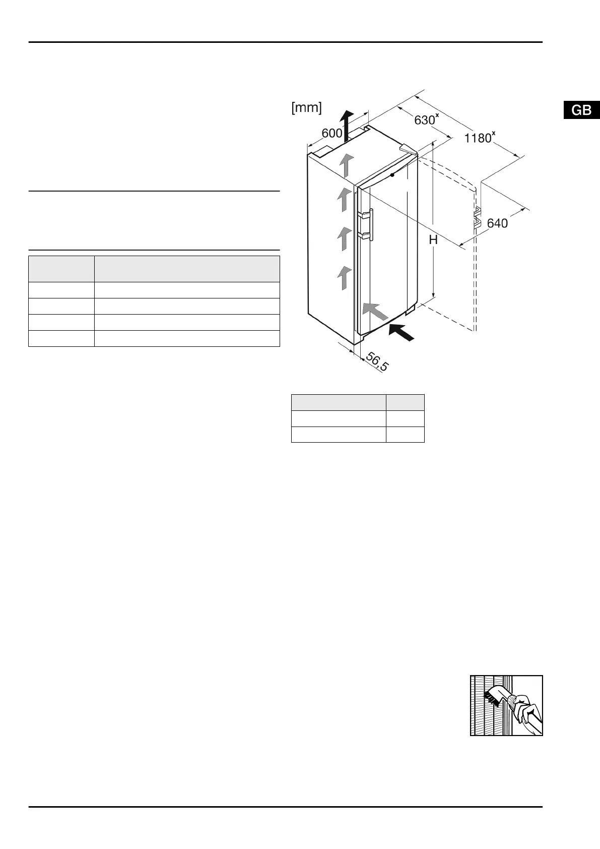
1.4 External dimensions of the appli-
ance
Fig. 2
Designation H (mm)
K(es) 36.., SK(es) 36.. 1655
K(es) 42.., SK(es) 42.. 1852
x
For appliances supplied with wall spacers, the measurement
increases by 35 mm (see 4.2) .
1.5 Saving energy
-
Always ensure good ventilation. Do not cover ventilation
openings or grille.
-
Always keep fan louvres clear.
-
Do not place appliance in areas of direct sunlight or next to a
stove, heater or similar object.
-
The energy consumption depends on the installation condi-
tions, e.g. the ambient temperature (see 1.2) .
-
Keep the time the appliance is open to a minimum.
-
The lower the temperature setting, the higher the power
consumption.
-
Store food logically. (see Appliance at a glance).
-
Ensure that all food is well packed and covered for storage.
This will prevent frost from forming.
-
Remove food as needed in order that it does not warm too
much.
-
First cool warm food to room temperature before storing it .
Accumulated dust increases the energy
consumption:
-
Once a year, dust the refrigerating unit
together with the metal grille of the heat
exchanger at the back of the appliance.
Appliance at a glance
* Depending on model and options 3
Bekijk gratis de handleiding van Liebherr SKes 4210 LH, stel vragen en lees de antwoorden op veelvoorkomende problemen, of gebruik onze assistent om sneller informatie in de handleiding te vinden of uitleg te krijgen over specifieke functies.
Productinformatie
Merk | Liebherr |
Model | SKes 4210 LH |
Categorie | Koelkast |
Taal | Nederlands |
Grootte | 2198 MB |