Handleiding
Je bekijkt pagina 3 van 26

The following applications are expressly
forbidden:
-
Storing and refrigerating medicines, blood
plasma, laboratory preparations or similar
substances and products based on the
Medical Device Directive 2007/47/EC
-
Use in outdoor areas with very high humidity.
-
Use in areas at risk of explosions
-
Use on moving substrates, such as ships, rail
travel or aeroplanes
-
Storing live animals
Misusing the appliance may lead to damage to
the goods stored or they may spoil.
Climate classifications
Depending on the climate classification the
appliance is designed to operate in restricted
ambient temperatures. The climate classifica-
tion applying to your appliance is printed on the
rating plate.
Note
u
Keep to the specified ambient temperatures
in order to guarantee that the appliance works
properly.
Climate classi-
fication
for ambient temperatures
SN, N to 32 °C
ST to 38 °C
T to 43 °C
The appliance will work properly down to a
lower ambient temperature of 5 °C.
1.3 Conformity
The refrigerant circuit has been tested for leaks. This appliance
complies with the applicable safety stipulations and with direc-
tives 2014/35/EU, 2014/30/EU, 2009/125/EG, 2011/65/EU and
2010/30/EU.
1.4 Product data
Product data is included with the appliance, as per Directive
(EU) 2017/1369. The complete product data sheet is available
on the Liebherr website under Downloads.
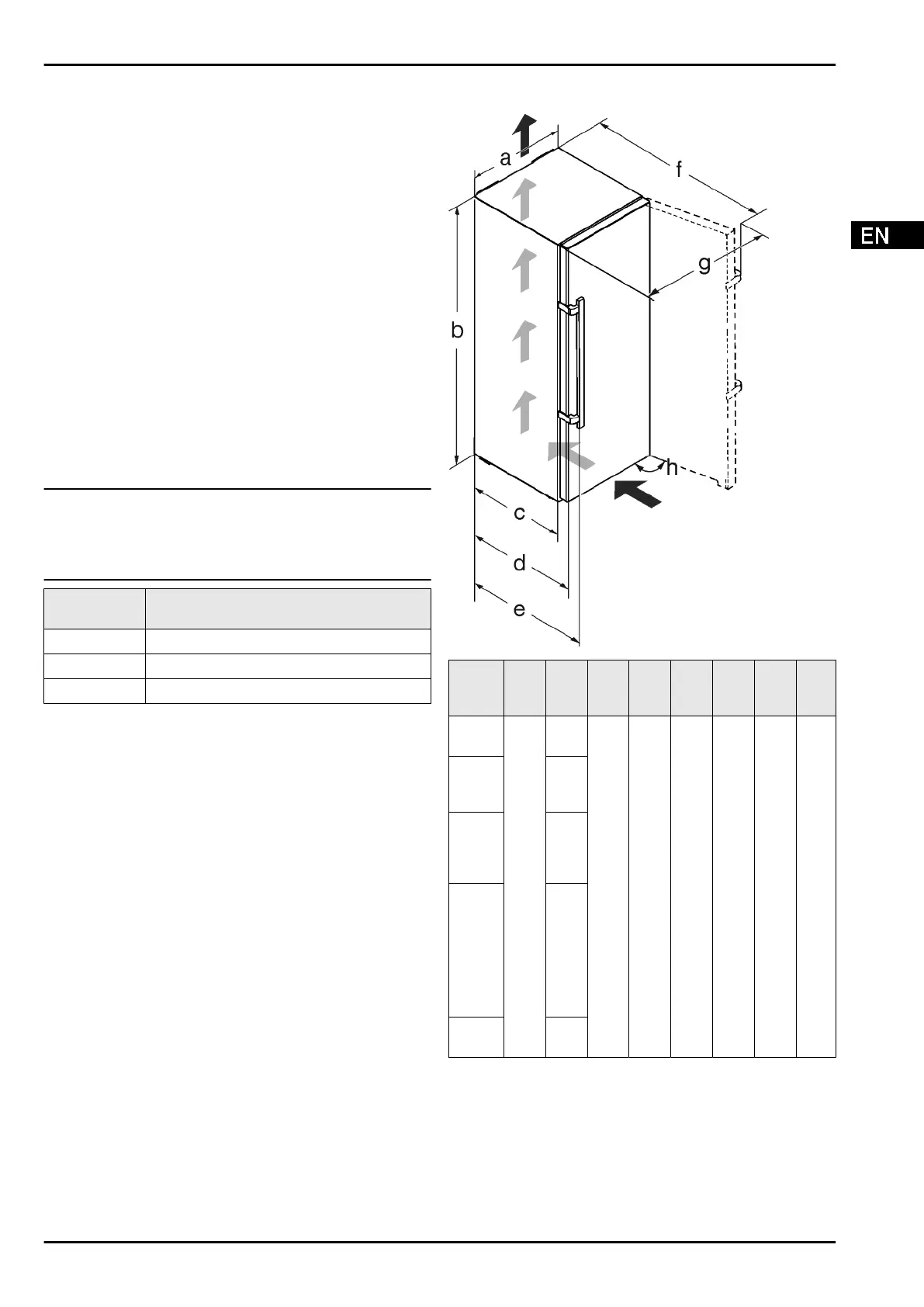
1.5 Installation dimensions
Fig. 2
Model* a
[mm]
*
b
[mm]
*
c
[mm]
*
d
[mm]
*
e
[mm]
*
f
[mm]
*
g
[mm]
*
h [°]*
GNP
28..
600 1250
600
x
665
x
709
x
1185
x
871 115
GNP(e
xw)
32..
1450
GNP
37.. /
LTGN
232
1650
(S)GN
P(es/ef
/bs)
43.. /
LTGN
268 /
FS
1151
1850
GNi
43..
1850
Appliance at a glance
* Depending on model and options 3
Bekijk gratis de handleiding van Liebherr SGNepes 4365 Premium, stel vragen en lees de antwoorden op veelvoorkomende problemen, of gebruik onze assistent om sneller informatie in de handleiding te vinden of uitleg te krijgen over specifieke functies.
Productinformatie
| Merk | Liebherr |
| Model | SGNepes 4365 Premium |
| Categorie | Vriezer |
| Taal | Nederlands |
| Grootte | 4730 MB |







