Handleiding
Je bekijkt pagina 13 van 180

13INSTALLATION
ENGLISH
Choosing the Proper Location
Dimensions and Clearances
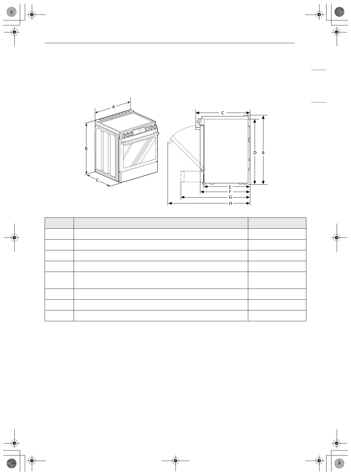
Dimensions
- Dimensions LSIL6336*E
AWidth 29 7/8" (758.8 mm)
BHeight 36 1/2" (927.9 mm)
C Depth (Includes Door Handle) 29 5/16" (743.9 mm)
D Height (Excludes Vent Trim) 36" (913.0 mm)
E
Depth (Includes only the product body that is loaded into the cabinet.
Excludes door, drawer, and handles)
24 3/4" (629.4 mm)
F Depth (Excludes Door Handle) 26 7/8" (683 mm)
G Depth when drawer is fully opened 36 1/16" (916.2 mm)
H Depth when door is fully opened 48 5/8" (1235.9 mm)
en-us_main.book.book Page 13 Monday, February 3, 2025 3:10 PM
Bekijk gratis de handleiding van LG LSIL6336XE, stel vragen en lees de antwoorden op veelvoorkomende problemen, of gebruik onze assistent om sneller informatie in de handleiding te vinden of uitleg te krijgen over specifieke functies.
Productinformatie
Merk | LG |
Model | LSIL6336XE |
Categorie | Fornuis |
Taal | Nederlands |
Grootte | 23757 MB |