Handleiding
Je bekijkt pagina 16 van 132

16 INSTALLATION
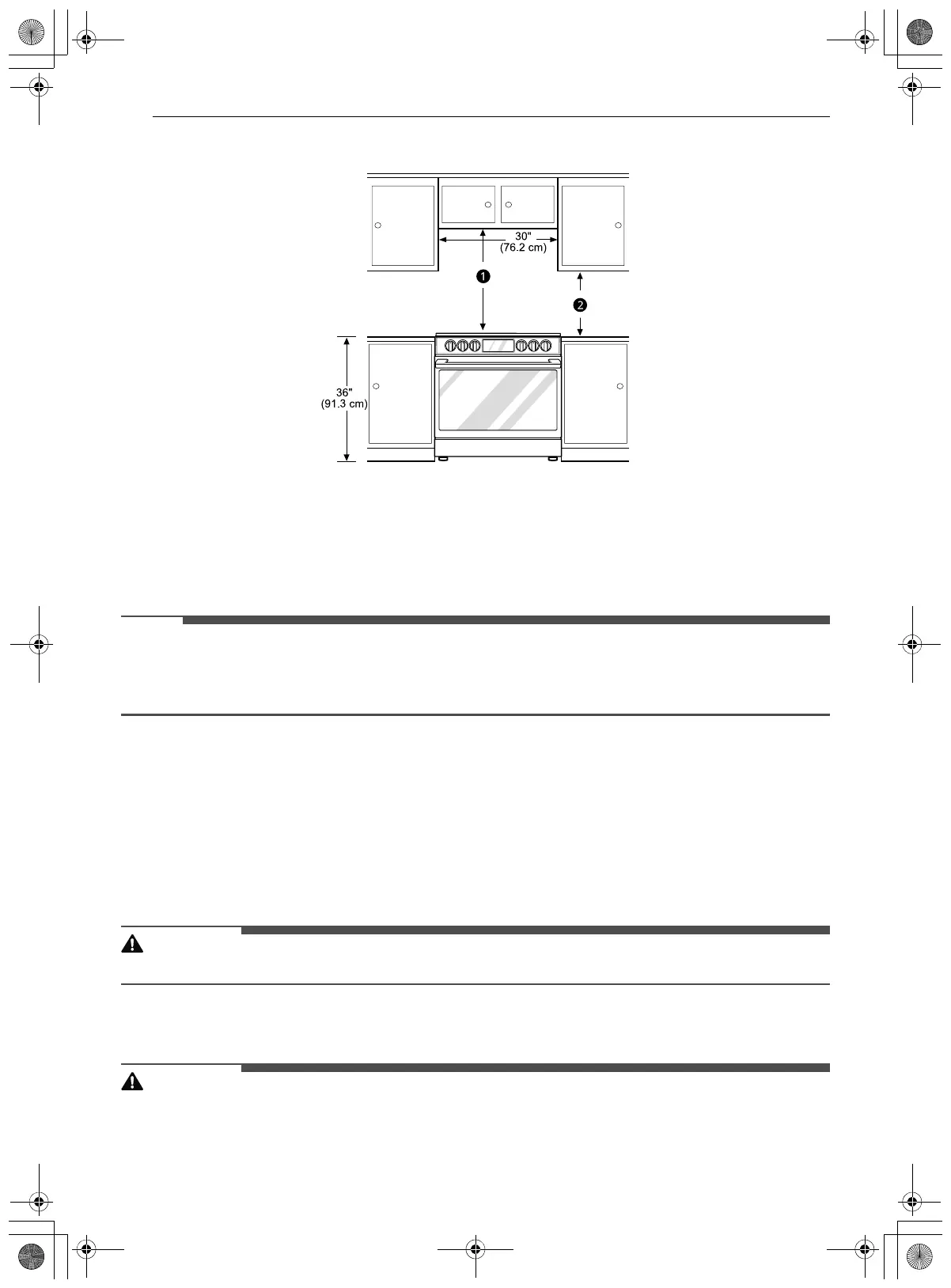
Minimum Dimensions
a 30" (76.2 cm) minimum clearance between the top of the cooking surface and the bottom of an
unprotected wood or metal cabinet; or 24" (60.9 cm) minimum when bottom of wood or metal cabinet
is protected by not less than 1/4"(0.64 cm) flame retardant millboard covered with not less than no. 28
MSG sheet steel, 0.015" (0.381 mm) stainless steel, 0.024" (0.610 mm) aluminum or 0.020" (0.508 mm)
copper.
b 15" (38.1 cm) minimum between countertop and adjacent cabinet bottom.
NOTE
• Important – Save for the use of the local electrical inspector.
• For installation in Canada, a free-standing range is not to be installed closer than 15/32" (12 mm) from
any adjacent surface.
Electricity
The range should always be plugged into its own individual properly grounded electrical outlet.
• This prevents overloading house wiring circuits which could cause a fire hazard from overheated wires.
• It is recommended that a separate circuit serving only this appliance be provided.
Flooring
CAUTION
• Use an insulated pad or 1/4 in. (0.64 cm) plywood under the range if installing the range over carpeting.
Ambient Temperature
CAUTION
• Make sure wall coverings, countertops and cabinets around the range can withstand the heat (up to 194
°F) generated by the range. Discoloration, delamination or melting may occur. This range has been
designed to comply with the maximum allowable wood cabinet temperature of 194 °F.
en-us_main.book.book Page 16 Tuesday, December 24, 2024 1:36 PM
Bekijk gratis de handleiding van LG LSEL6335XE, stel vragen en lees de antwoorden op veelvoorkomende problemen, of gebruik onze assistent om sneller informatie in de handleiding te vinden of uitleg te krijgen over specifieke functies.
Productinformatie
Merk | LG |
Model | LSEL6335XE |
Categorie | Fornuis |
Taal | Nederlands |
Grootte | 16872 MB |