Handleiding
Je bekijkt pagina 15 van 92

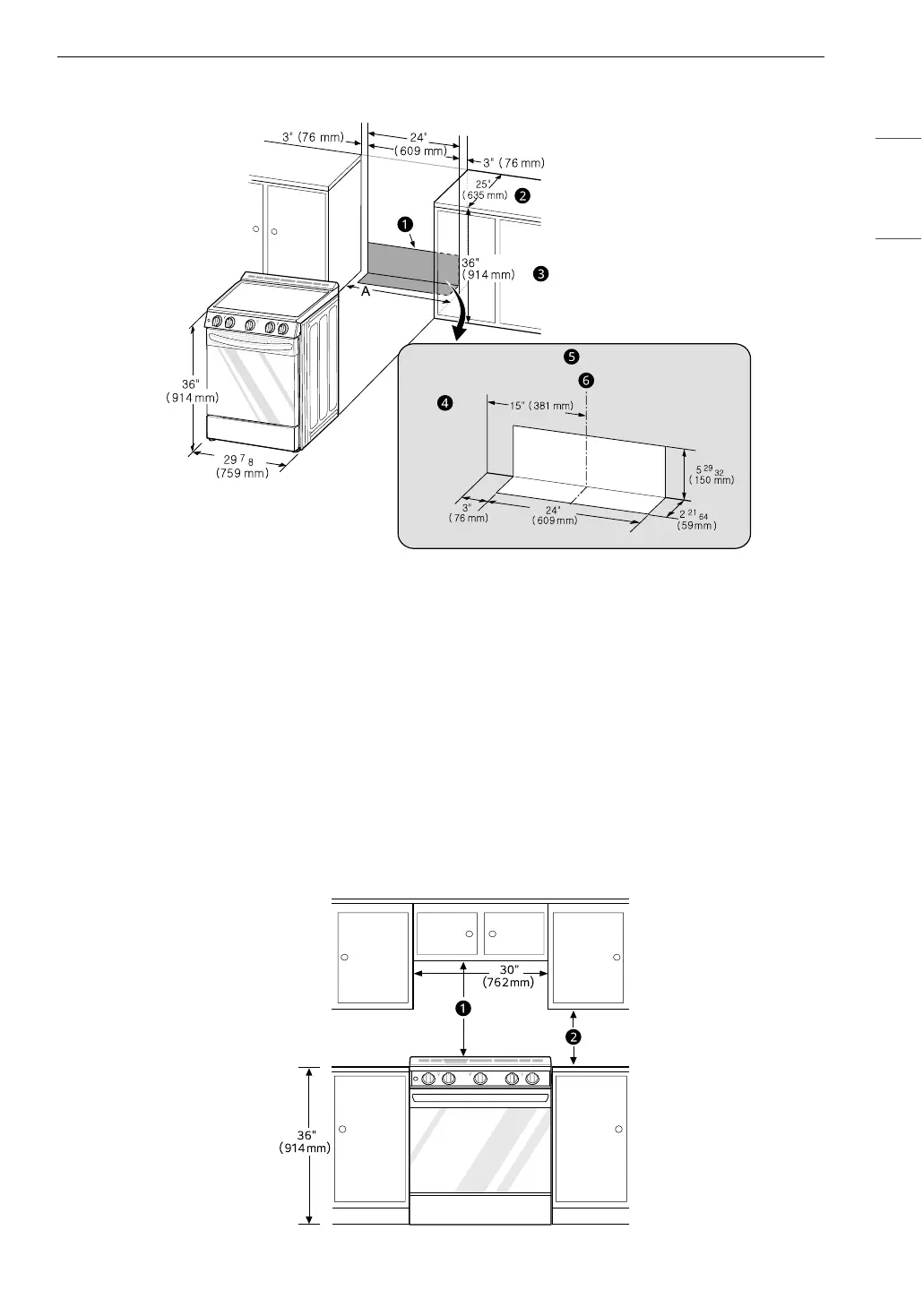
15INSTALLATION
ENGLISH
Clearances
a Acceptable electrical outlet area
b Normal counter top depth
c Counter top height
d Cabinet
e Wall
f Center
A (Cabinet opening)
= 30" (762 mm) ~ 31" (787 mm)
Minimum Dimensions
/ "
/"
/"
en-us_main.book.book Page 15 Wednesday, February 14, 2024 9:22 AM
Bekijk gratis de handleiding van LG LSEL6330SE, stel vragen en lees de antwoorden op veelvoorkomende problemen, of gebruik onze assistent om sneller informatie in de handleiding te vinden of uitleg te krijgen over specifieke functies.
Productinformatie
Merk | LG |
Model | LSEL6330SE |
Categorie | Fornuis |
Taal | Nederlands |
Grootte | 9127 MB |